-4% на пазара

спрямо ≈ 1 200 € /кв.м

89 050 €

1 254 € /кв.м.

Двустаен апартамент с тераса в нова сграда в Прослав, Пловдив

Продажба Пловдив Прослав Обновена: 14 Апр 2026
71 м²
Тухла
2 /4 ет.
2027 г.
-4% на пазара (1 254 €/кв.м спрямо 1 200 €/кв.м)

Коментар от imotesa

AI обобщение

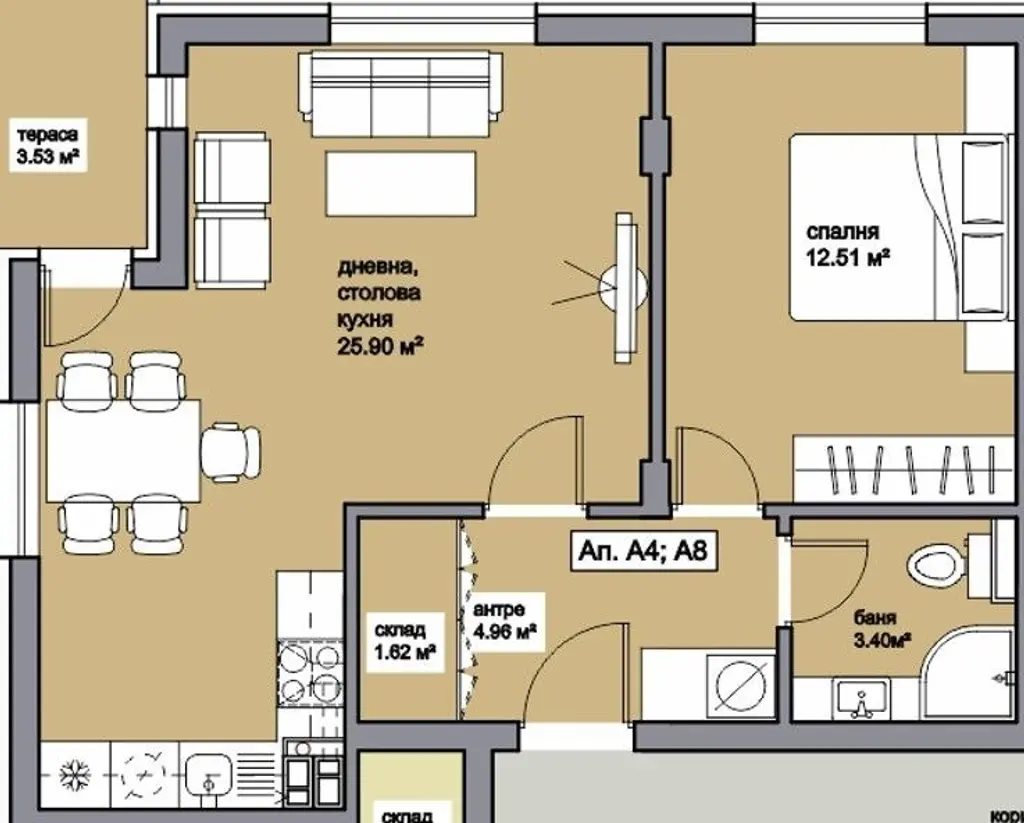
Двустаен апартамент с площ 71 кв.м. в квартал Прослав, град Пловдив.

Разпределението включва входно антре, дневна с кухненски бокс, спалня, баня с тоалетна и тераса с южно изложение.

Сградата е ново строителство от 2027 г., тухлена, с асансьор и контролиран достъп. Жилището се предлага на шпакловка и замазка.

Локацията е удобна, с близост до търговски обекти, детски градини, училище и автобусни спирки.

Подходящо за хора, търсещи ново жилище с функционално разпределение и удобства в спокоен квартал.

Разпределение

  • антре
  • дневна с кухненски бокс
  • спалня
  • баня с тоалетна
  • тераса

Предимства

южно изложение

ново строителство

асансьор

контролиран достъп

Недостатъци

на шпакловка и замазка

Изложение

N S E W
S
Изложение на имота

Детайли

Площ
71 м²
Стаи
2
Етаж
2 от 4
Строителство
brick
Год. на строителство
2027 г.

Особености

elevator
access-control
renovated

Описание от продавача

Титан Пропъртис има удоволствието да Ви представи двустаен апартамент в новострояща се, жилищна сграда в кв. Прослав.
В близост са разположени търговски обекти, детски градини, училище,спирки на автобуси.

Апартаментът е ситуиран на 2-ри жилищен етаж и разполага с площ от 71 кв.м., разгърната по следния практичен начин: Входно антре, дневна с кухненски бокс, спалня, баня с тоалетна, тераса.
Изложението е южно. Сградата разполага с асансьор.
Жилището се предлага на шпакловка и замазка!
Има възможност за закупуване на паркомясто на цена 15 000 евро.

За оглед на това и други атрактивни предложения, не се колебайте да ни потърсите на посочения телефон или да ни изпратите данните си чрез формата за запитване на сайта.
Референтен номер: 1152

Приблизителна локация
Връзка с продавача