1% на пазара

спрямо ≈ 1 350 € /кв.м

99 900 €

1 350 € /кв.м.

Двустаен апартамент с ъглова дневна в Остромила, Пловдив

Продажба Пловдив Остромила Обновена: 17 Апр 2026
74 м²
Тухла
2 стаи
2 /4 ет.
2026 г.

Доходност от наем: 6.3% /год. Добра инвестиционна оценка

Обяви за този имот (5)

99 900 €
1
1 Яну 0001  ·  17 Апр 2026
100 360 €
1
1 Яну 0001  ·  3 Март 2026
100 980 €
1
1 Яну 0001  ·  1 Апр 2026
103 130 €
1
1 Яну 0001  ·  1 Апр 2026
108 450 €
1
1 Яну 0001  ·  3 Апр 2026
1% на пазара (1 338 €/кв.м спрямо 1 350 €/кв.м)
Потенциална годишна доходност: 6.3% (база: ~523 €/мес)
Инвестиционен клас: Добра
Подходящ за инвестиция (доходност над 6%)
4 агенции продават този имот

Коментар от imotesa

AI обобщение

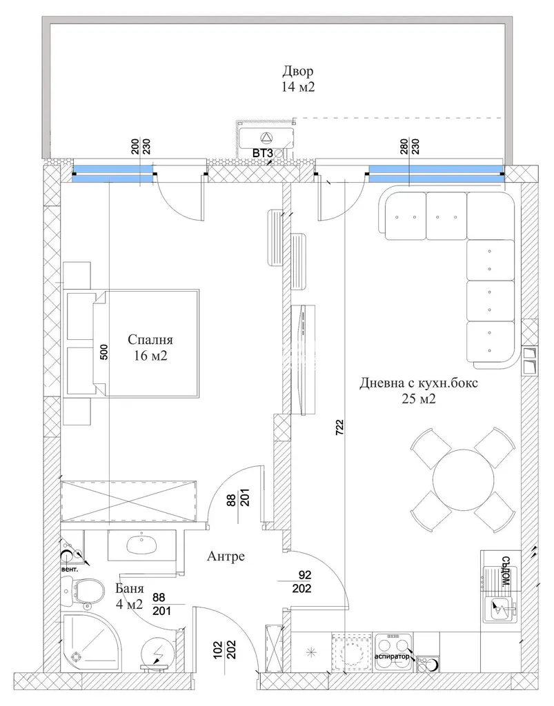
Предлаганият двустаен апартамент е част от нов комплекс с две самостоятелни сгради, разположен в бързо развиващия се и спокоен район Остромила в Пловдив. Жилището е с обща площ 75 кв.м и се намира на втори етаж от четири. Проектиран с нисък процент общи части (12%), апартаментът предлага по-голяма реална площ и комфорт. Светлата ъглова дневна с кухненски бокс е с площ 26.40 кв.м и има излаз на тераса. Спалнята е самостоятелна и с площ 13.50 кв.м. Жилището включва баня с тоалетна, входно антре с място за гардероб и избено помещение. Строителството е от австрийски червени тухли Wienerberger, като завършекът включва шпакловка, изравнителна замазка, PVC дограма, блиндирана входна врата, хидравличен асансьор и топло-хидроизолация. В комплекса е предвидено парково озеленяване и детски площадки. Възможно е закупуване на подземен гараж или паркомясто. Цената е фиксирана и без индексация по време на строителството.

Разпределение

  • дневна - 26.40 м2
  • спалня - 13.50 м2
  • баня с тоалетна
  • входно антре

Предимства

нисък процент общи части

ъглова дневна с тераса

качествени материали

парково озеленяване

Недостатъци

втори етаж

без обзавеждане

Изложение

N S E W
S
Изложение на имота

Детайли

Площ
74 м²
Стаи
2
Бани
1
Етаж
2 от 4
Строителство
brick
Год. на строителство
2026 г.

Описание от продавача

Оферта 65402: МЕСЕЧНА ПРОМОЦИЯ - ПЛАТИ 19 980 СЕГА, ОСТАТЪКА СЛЕД АКТ 16!!! Комплексът се състои от две самостоятелни сгради - тип Фамилни къщи, намиращи се в един от най-бързо развиващите се и спокойни райони на града. Проектирани с модерна и раздвижена архитектура, създадени с идеята да осигурят максимален комфорт, лукс и удобства. Апартаментът се състои от просторна дневна - 25м2, имаща излаз на собствен двор - 14м2, една спалня - 16м2, баня с тоалетна и входно антре. Към апартамента има избено помещение, включено в цената. Жилищата са завършени с висококачествени материали, гарантиращи качество и сигурност. Сградата е изградена с Австрийски червени тухли Винербергер и е издадена в следния вид: шпакловка на стени и тавани, подове- изравнителна замазка, РVС-дограма, масивни блиндирани входни врати, просторно и светло стълбище, хидравличен асансьор, топло и хидро изолация, иноксови парапети, гранитно стълбище. В комплекса има възможност за закупуване на подземен гараж или надземно паркомясто на цена от 12000 евро. В Дворното място е предвидено парково озеленяване и детски площадки. ОСИГУРЕНО БАНКОВО ФИНАНСИРАНЕ НА ПРЕФЕРЕНЦИАЛНИ УСЛОВИЯ ЗА КЛИЕНТИ НА АГЕНЦИЯТА.

ВИЖТЕ ОЩЕ ИЗГОДНИ ОФЕРТИ НА https://www.kondorimoti.com/ С ЕЖЕДНЕВНА АКТУАЛИЗАЦИЯ!

Приблизителна локация
Връзка с продавача
имоти за продажба без посредник (11265) имоти под наем без посредник (11265) имоти за продажба (11265) имоти под наем (11265) апартаменти под наем без посредник (6684) апартаменти за продажба (6684) апартаменти за продажба без посредник (6684) апартаменти под наем (6684) имоти за продажба в гр. София, Мусагеница без посредник (3225) имоти за продажба в гр. София, ПЗ Илиянци без посредник (3225) имоти за продажба в гр. София, Свобода без посредник (3225) имоти за продажба в гр. София, Горна баня без посредник (3225) имоти за продажба в гр. София, Изгрев без посредник (3225) имоти за продажба в гр. София, Славовци без посредник (3225) имоти за продажба в гр. София, Света Троица без посредник (3225) имоти за продажба в гр. София, Левски Г без посредник (3225) имоти за продажба в гр. София, Горубляне без посредник (3225) имоти за продажба в гр. София, Овча купел без посредник (3225) имоти за продажба в гр. София, м-т Орехите без посредник (3225) имоти за продажба в гр. София, Люлин 7 без посредник (3225) имоти за продажба в гр. София, Илиянци без посредник (3225) имоти за продажба в гр. София, Младост 1А без посредник (3225) имоти за продажба в гр. София, в.з. Беловодски път без посредник (3225) имоти за продажба в гр. София, Полигона без посредник (3225) имоти за продажба в гр. София, Разсадника без посредник (3225) имоти за продажба в гр. София, Подуяне без посредник (3225) имоти за продажба в гр. София, Красна поляна 3 без посредник (3225) имоти за продажба в гр. София, Младост 2 без посредник (3225) имоти за продажба в гр. София, Надежда 4 без посредник (3225) имоти за продажба в гр. София, в.з. Горна баня без посредник (3225) имоти за продажба в гр. София, Надежда 2 без посредник (3225) имоти за продажба в гр. София, в.з. Врана - Герман без посредник (3225) имоти за продажба в гр. София, НПЗ Хаджи Димитър без посредник (3225) имоти за продажба в гр. София, Павлово без посредник (3225) имоти за продажба в гр. София, в.з. Врана - Лозен без посредник (3225) имоти за продажба в гр. София, Суходол без посредник (3225) имоти за продажба в гр. София, Кубратово без посредник (3225) имоти за продажба в гр. София, Борово без посредник (3225) имоти за продажба в гр. София, Драгалевци без посредник (3225) имоти за продажба в гр. София, Белите брези без посредник (3225) имоти за продажба в гр. София, в.з. Драгалевци лифта без посредник (3225) имоти за продажба в гр. София, Илинден без посредник (3225) имоти за продажба в гр. София, Хиподрума без посредник (3225) имоти за продажба в гр. София, Лагера без посредник (3225) имоти за продажба в гр. София, Модерно предградие без посредник (3225) имоти за продажба в гр. София, Гоце Делчев без посредник (3225) имоти за продажба в гр. София, Красна поляна 1 без посредник (3225) имоти за продажба в гр. София, Център без посредник (3225) имоти за продажба в гр. София, Малинова долина без посредник (3225) имоти за продажба в гр. София, Меден рудник - зона Г без посредник (3225)