-14% под пазара

спрямо ≈ 1 576 € /кв.м

95 850 €

1 350 € /кв.м.

Двустаен апартамент с модерна визия в Христо Смирненски, Пловдив

Продажба Пловдив Христо Смирненски Обновена: 15 Апр 2026
71 м²
Тухла
1 бани
3 /6 ет.
2028 г.

Доходност от наем: 6.7% /год. Добра инвестиционна оценка

Обяви за този имот (1)

95 850 €
1
1 Яну 0001  ·  15 Апр 2026
-14% под пазара (1 350 €/кв.м спрямо 1 576 €/кв.м)
Потенциална годишна доходност: 6.7% (база: ~532 €/мес)
Инвестиционен клас: Добра
Подходящ за инвестиция (доходност над 6%)

Коментар от imotesa

AI обобщение

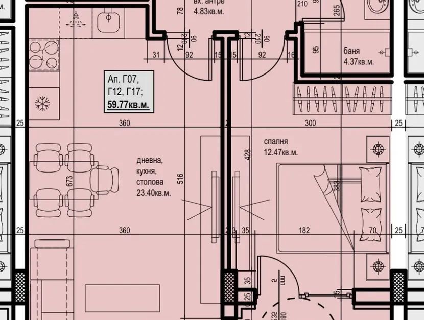
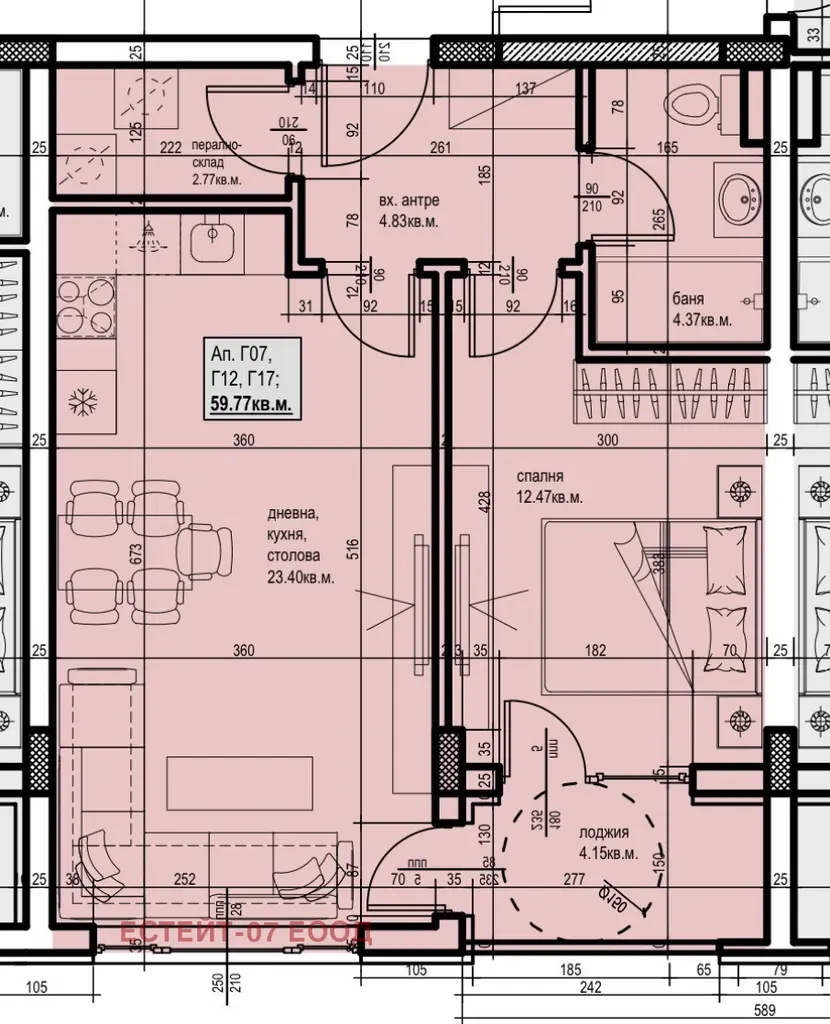
Предлаганият двустаен апартамент е част от нов жилищен комплекс с четири тела в квартал Христо Смирненски, Пловдив. Сградата е тухлена, с очаквана година на завършване 2028 г. Апартаментът е разположен на трети етаж от общо шест и предлага функционално разпределение: хол с кухня около 24 кв.м., спалня 13 кв.м., баня 4 кв.м., склад 3 кв.м. и тераса-лоджия 5 кв.м. Общата площ е 71 кв.м., а чистата жилищна площ 60 кв.м. Комплексът няма да бъде затворен тип, но ще разполага с удобства, характерни за такива. Локацията в квартал Христо Смирненски осигурява достъп до градска инфраструктура и удобства.

Разпределение

  • хол с кухня-24кв.
  • спалня-13кв.
  • баня-4кв.
  • склад-3кв.
  • тераса лоджия-5кв.

Предимства

модерна визия

функционално разпределение

тераса-лоджия

тухлено строителство

Недостатъци

не е затворен комплекс

Детайли

Площ
71 м²
Стаи
2
Бани
1
Етаж
3 от 6
Строителство
brick
Год. на строителство
2028 г.

Описание от продавача

Предлагаме Ви за продажба двустаен слънчев апартамент в ново изграждащ се жилищен комплекс, отличаващ се с модерна визия,състоящ се от четири тела.Комплексът няма да бъде от затворен тип ,но ще разполага с всички удобства на такъв.Представлява хол с кухня-около 24кв.,спалня 13кв.м.,баня 4кв.м.,склад-3кв.м.,тераса лоджия-5кв.м.Чистата жилищна площ е 60кв.м.За повече информация и огледи 0897913101.

Приблизителна локация
Връзка с продавача
имоти за продажба без посредник (11230) имоти под наем без посредник (11230) имоти за продажба (11230) имоти под наем (11230) апартаменти под наем без посредник (6669) апартаменти за продажба (6669) апартаменти за продажба без посредник (6669) апартаменти под наем (6669) имоти за продажба в гр. София, Мусагеница без посредник (3217) имоти за продажба в гр. София, ПЗ Илиянци без посредник (3217) имоти за продажба в гр. София, Свобода без посредник (3217) имоти за продажба в гр. София, Горна баня без посредник (3217) имоти за продажба в гр. София, Изгрев без посредник (3217) имоти за продажба в гр. София, Славовци без посредник (3217) имоти за продажба в гр. София, Света Троица без посредник (3217) имоти за продажба в гр. София, Левски Г без посредник (3217) имоти за продажба в гр. София, Горубляне без посредник (3217) имоти за продажба в гр. София, Овча купел без посредник (3217) имоти за продажба в гр. София, м-т Орехите без посредник (3217) имоти за продажба в гр. София, Люлин 7 без посредник (3217) имоти за продажба в гр. София, Илиянци без посредник (3217) имоти за продажба в гр. София, Младост 1А без посредник (3217) имоти за продажба в гр. София, в.з. Беловодски път без посредник (3217) имоти за продажба в гр. София, Полигона без посредник (3217) имоти за продажба в гр. София, Разсадника без посредник (3217) имоти за продажба в гр. София, Подуяне без посредник (3217) имоти за продажба в гр. София, Красна поляна 3 без посредник (3217) имоти за продажба в гр. София, Младост 2 без посредник (3217) имоти за продажба в гр. София, Надежда 4 без посредник (3217) имоти за продажба в гр. София, в.з. Горна баня без посредник (3217) имоти за продажба в гр. София, Надежда 2 без посредник (3217) имоти за продажба в гр. София, в.з. Врана - Герман без посредник (3217) имоти за продажба в гр. София, НПЗ Хаджи Димитър без посредник (3217) имоти за продажба в гр. София, Павлово без посредник (3217) имоти за продажба в гр. София, в.з. Врана - Лозен без посредник (3217) имоти за продажба в гр. София, Суходол без посредник (3217) имоти за продажба в гр. София, Кубратово без посредник (3217) имоти за продажба в гр. София, Борово без посредник (3217) имоти за продажба в гр. София, Драгалевци без посредник (3217) имоти за продажба в гр. София, Белите брези без посредник (3217) имоти за продажба в гр. София, в.з. Драгалевци лифта без посредник (3217) имоти за продажба в гр. София, Илинден без посредник (3217) имоти за продажба в гр. София, Хиподрума без посредник (3217) имоти за продажба в гр. София, Лагера без посредник (3217) имоти за продажба в гр. София, Модерно предградие без посредник (3217) имоти за продажба в гр. София, Гоце Делчев без посредник (3217) имоти за продажба в гр. София, Красна поляна 1 без посредник (3217) имоти за продажба в гр. София, Център без посредник (3217) имоти за продажба в гр. София, Малинова долина без посредник (3217) имоти за продажба в гр. София, Меден рудник - зона Г без посредник (3217)