-3% на пазара

спрямо ≈ 1 276 € /кв.м

65 983 €

1 081 € /кв.м.

Двустаен апартамент с тераса в кв. Гагарин, Пловдив

Продажба Пловдив Гагарин Обновена: 9 Апр 2026
61 м²
Тухла
1 бани
2027 г.
-3% на пазара (1 319 €/кв.м спрямо 1 276 €/кв.м)

Коментар от imotesa

AI обобщение

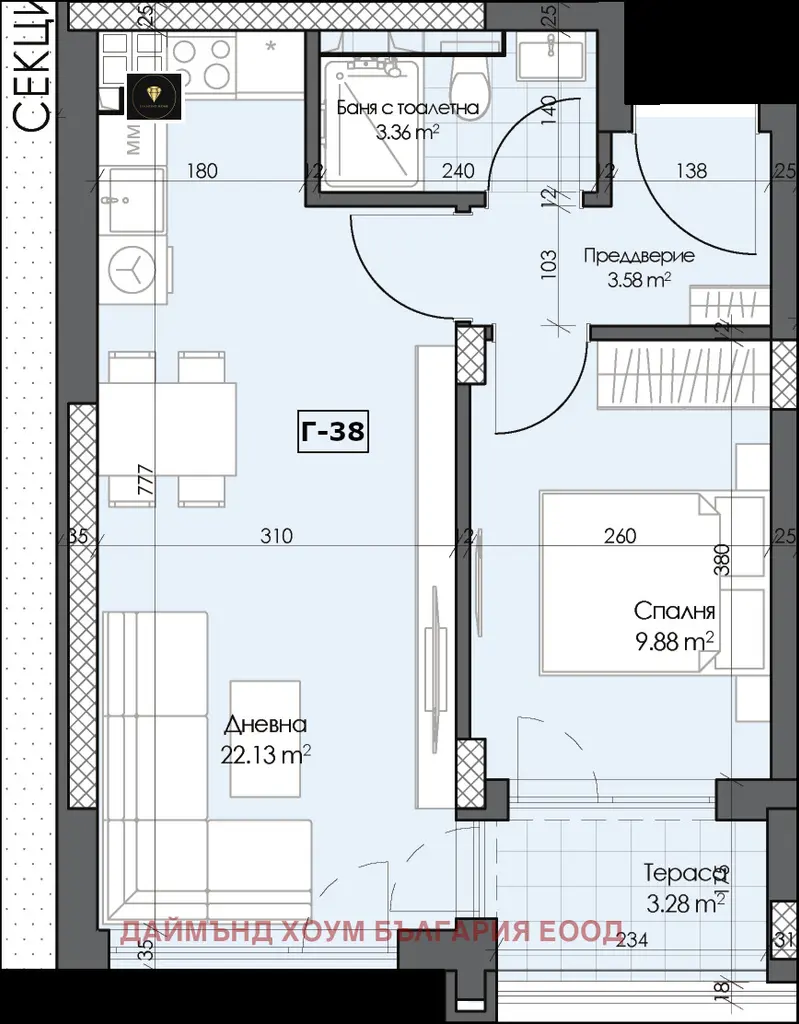
Предлаганият двустаен апартамент е част от новострояща се сграда с тухлено строителство, планирана за завършване през 2027 г. Жилището разполага с функционално разпределение – входно антре, дневна с трапезария и кухненски бокс, спалня, баня с WC и тераса с източно изложение. Локацията в квартал Гагарин осигурява удобен достъп до центъра на Пловдив, както и близост до детски и учебни заведения и търговски обекти. Проектът е реализиран от доказан инвеститор с опит, като сградата се изгражда с висококачествени строителни материали. Има възможност за закупуване на гараж или паркомясто, което допринася за удобството на бъдещите обитатели.

Разпределение

  • Входно антре
  • дневна с трапезария и кухненски бокс
  • спалня
  • баня с WC
  • тераса

Предимства

функционално разпределение

висококачествени материали

близо до учебни заведения

възможност за гараж

Недостатъци

източно изложение

Изложение

N S E W
E
Изложение на имота

Детайли

Площ
61 м²
Стаи
2
Бани
1
Строителство
brick
Год. на строителство
2027 г.

Особености

elevator

Описание от продавача

🙏 С всяка сделка ние от Diamond Home помагаме! 💎
Даряваме процент от нашата комисионна на Фондация Вярвай - организация, която подпомага хора, борещи се с рак.
Вярваме, че заедно можем да направим нещо повече от просто бизнес - можем да дадем надежда. ❤️

🏠 Представяме Ви двустаен апартамент в новострояща се жилищна сграда, в кв. Гагарин.

📐разпределение: Входно антре, дневна с трапезария и кухненски бокс, спалня, баня с WC и тераса.

🧭изложение: Изток

📍локация: С бърз достъп до Центъра на града и в близост до детски и учебни заведения и различни търговски обекти.

Възможност за закупуване на гараж/паркомясто!
Нов проект на доказан инвеститор с дългогодишен опит!
Сградата се изпълнява с висок клас строителни материали!

💎 Нашата мисия е да ви предоставим доверие и обслужване от най-висок клас.
💎 Предлагаме над 1000 имота.
💎 Нашите услуги включват:
- Консултация със старши брокер
- Съдействие при кредитиране
- Договаряне на най-изгодни условия
- Пълна документация и юридическа подкрепа
- Управление на имоти

💎 За информация или оглед се свържете с нас!

ОФЕРТА НОМЕР: 242103

Приблизителна локация
Връзка с продавача