177 778 €

1 601 € /кв.м.

Тристаен апартамент в Славейков, Бургас с тераса

Продажба Бургас Славейков Обновена: 20 Март 2026
111 м²
Тухла
2 бани
7 /16 ет.
2029 г.

Коментар от imotesa

AI обобщение

Апартамент с площ 111 кв.м, разположен в кв. Славейков, град Бургас. Имотът е част от мащабен проект с модерна архитектура и смесено предназначение.

Разпределението включва антре, дневна с кухня и трапезария, две спални, две бани/тоалетни и тераса към дневната и една от спалните. Има и складово помещение, което добавя функционалност.

Сградата е тухлена, строителството е предвидено за 2029 г., с асансьор и контрол на достъпа. Използвани са енергийно ефективни материали и висок клас дограма.

Локацията е на главна пътна артерия в квартала, с удобен достъп до градската инфраструктура и вътрешен двор с зелени площи, осигуряващ спокойствие.

Имотът е подходящ за живеене в градска среда с балансирано съчетание на удобства и функционалност.

Разпределение

  • антре
  • склад
  • дневна с кухня и трапезария
  • спалня
  • спалня
  • тераса

Предимства

функционално разпределение

тераса

асансъор

енергийно ефективни материали

Недостатъци

Няма налични данни за недостатъци.

Детайли

Площ
111 м²
Бани
2
Етаж
7 от 16
Строителство
brick
Год. на строителство
2029 г.

Особености

elevator
access-control

Описание от продавача

LUXIMMO FINEST ESTATES: www.luximmo.bg
Представяме комфортен тристаен апартамент за продажба във впечатляващ мащабен проект в Бургас сграда със смесено предназначение, възложена от Съюза на архитектите в България и вдъхновена от Motif Architecture.

В процес на строителство. Акт 16 - 2029 г.

Комплексът съчетава модерна визия, функционалност, удобна локация на главната пътна артерия в кв. 'Славейков' и разнообразие от пространства, създадени за живот, работа и инвестиция. Проектът впечатлява със своята модерна композиция от шест архитектурни обема, с отличителен облик с тухлени фасади, които създават усещане за стил, идентичност и хармония в градския пейзаж.

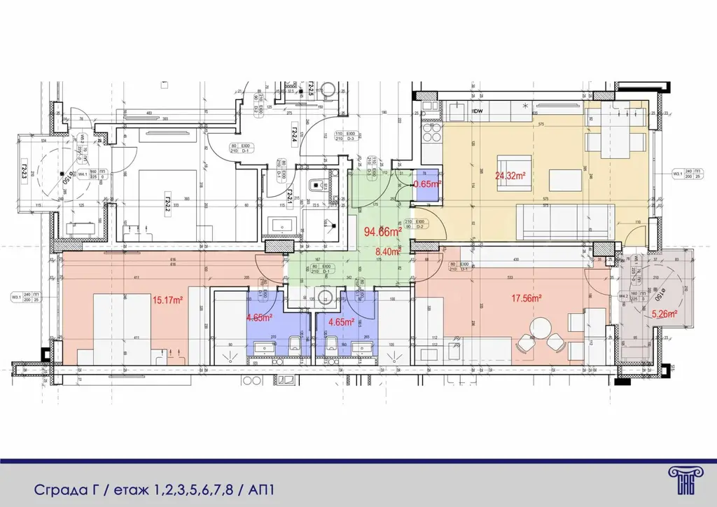
Имотът е разположен на 7-и етаж и има обща площ 111,81 кв.м, чиста площ 94,66 кв.м. Състои се от антре, склад, дневна с кухня и трапезария, две бани/тоалетни, две спални, тераса към една от спалните и дневната.

Към имота има опция за закупуването на двойно подземно паркомясто на цена 55 000 евро / 107570,65 лв.

В концепцията на проекта:
жилищна част с двустайни, тристайни и четиристайни апартаменти;
офис площи и многофункционална конферентна зала на Съюза на архитектите;
търговски обекти и кафене;
апартхотел;
подземен и надземен паркинг;
вътрешен двор със зелени площи и зони за отдих.

Комплексът предлага балансирана среда между динамиката на града и спокойствието на вътрешното пространство. Проектът е разработен с ясно функционално зониране търговските площи са ориентирани към основната улица, а вътрешният двор е защитен и спокоен, отделен от градския шум.

Технически характеристики и степен на завършеност (по БДС):
фасадна дограма с енергийно ефективни стъклопакети и висок клас обков (REHAU, Kommerling);
електроинсталация изградена до ключови точки с табла, трасета и контакти, включително слаботокови инсталации;
ВиК инсталации изпълнени с висок клас материали до крайни точки;
климатизация (Daikin или еквивалент) във всички помещения;
стени и тавани ...

За повече информация свържете се с нас и цитирайте референтния номер на имота. Моля, кажете, че сте видeли обявата в този сайт.
Референтен номер: SOF-138872
Тел: 0988 170 875 , 02 454 12 89
Отговорен брокер:Димитрина Иванова

Точен адрес

Връзка с продавача