108 155 €

992 € /кв.м.

Апартамент 3-стаен в Меден рудник, Бургас с асансьор

Продажба Бургас Меден рудник - зона В Обновена: 25 Март 2026
109 м²
Тухла
6 /8 ет.
2029 г.

Коментар от imotesa

AI обобщение

Апартамент в град Бургас, квартал Меден рудник - зона В, близо до Битак.

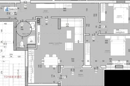
Разполага с тристаен layout и площ от 109 кв.м, разположен на 6-ти етаж от 8 в сграда с асансьор.

Сградата е ново строителство от 2029 г., изградена с тухлено строителство и предлага възможност за довършване до ключ.

Локацията е комуникативна, с близост до градски транспорт, училище, детска градина и хипермаркет.

Подходящ за хора, търсещи удобен градски живот с лесен достъп до основни услуги и инфраструктура.

Разпределение

  • двустайни
  • тристайни

Предимства

ново строителство

асансьор

качествени материали

добра локация

Недостатъци

Няма налични данни за недостатъци.

Детайли

Площ
109 м²
Етаж
6 от 8
Строителство
brick
Год. на строителство
2029 г.

Особености

elevator
renovated

Описание от продавача

СТРОИТЕЛНА ФИРМА ТОЧЕВ И КО представяме новия си проект в гр. Бургас, ж.к. Меден Рудник, бившия БИТАК, на централен булевард. А. Г. Коджакафалията и ул. Въстаническа, на кръстовището.
В близост се намират - терминал на градския транспорт, хипермаркет, училище и детска градина. Много добър и комуникативен район с лесен достъп..
Проектът представлява девет етажна сграда с два входа, състояща се от партерни магазини и гаражи, двустайни и тристайни апартаменти, като имотите ще се издават на тапа по БДС. Срок за изпълнение-36 месеца от строително ниво и линия.
АПАРТАМЕНТ Б-46.
Стандартна схема на плащане:
1. На предварителен договор -10% от стойността на имота
2. на строително ниво и линия/първа копка/-30% от стойността на имота
3. на долна плоча на етажа, на който е имота-30% от стойността на имота
4. на Акт 14-20% от стойността на имота
5. на Акт 15-5% от стойността на имота
6. на Акт 16-5% от стойността на имота
Цените са без КОМИСИОННА!
Разсрочено плащане!
БЕЗ ТАКСА ПОДДРЪЖКА.
Възможност за довършване до ключ!
ВЪЗМОЖНОСТ ЗА ПОКУПКА НА ПАРКОМЯСТО ИЛИ ГАРАЖ!!

Точен адрес

Връзка с продавача