156 838 €

2 208 € /кв.м.

Апартамент 2-стаен в Зорница, Бургас с тераса

Продажба Бургас Зорница Обновена: 1 Апр 2026
71 м²
Тухла
1 бани
2 /5 ет.
2027 г.

Обяви за този имот (1)

156 838 €
1
1 Яну 0001  ·  1 Апр 2026

Коментар от imotesa

AI обобщение

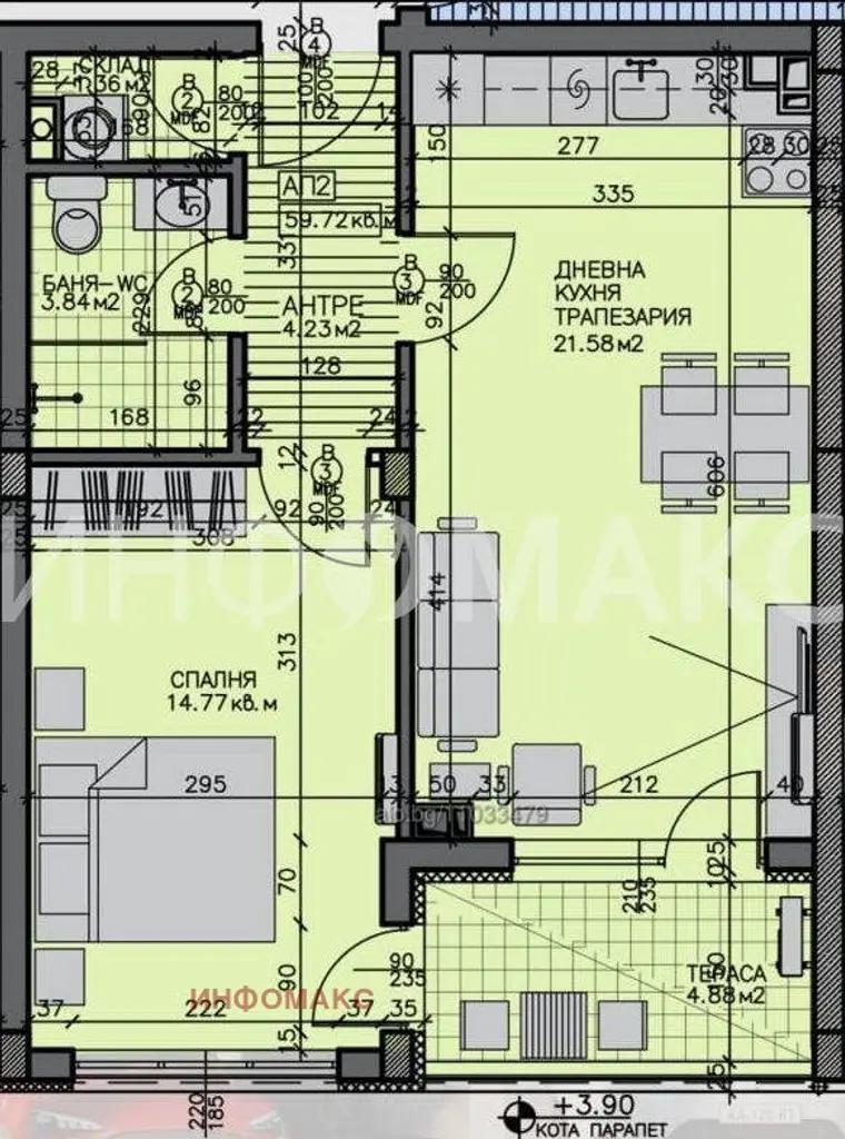
Апартамент с площ 71 кв.м, разположен в квартал Зорница, град Бургас. Имотът е част от нова жилищна сграда, строителство от 2027 г. на втори етаж от пет.

Разпределение

  • дневна с трапезария и кухненски кът - 21,58 кв.м
  • спалня - 14,77 кв.м
  • санитарен възел
  • склад - 1,36 кв.м
  • входно антре/коридор - 4,23 кв.м
  • тераса - 4,88 кв.м

Предимства

ново строителство

функционално разпределение

асансьор

тераса

Недостатъци

Няма налични данни за недостатъци.

Детайли

Площ
71 м²
Бани
1
Етаж
2 от 5
Строителство
brick
Год. на строителство
2027 г.

Особености

elevator

Описание от продавача

БЕЗ ТАКСА ПОДДРЪЖКА!!!

ИНФОМАКС Ви предлага съвременно ново строителство БЕЗ КОМИСИОННА ОТ КУПУВАЧ!

По проект жилищната сграда ще е на 5 надземни етажа и сутерен/подземен паркинг, като за удобство на живущите асансьора ще слиза до ниво -1.

Сградата е разработена с висок клас материали и съвременни енергийно-ефективни технологии. Фасадата е проектирана с внимание към всеки детайл, съчетавайки съвременен дизайн, стъкло, иновативни архитектурни елементи и богато озеленяване.

Локацията на имота е изключително удобна, в близост до центъра на града тя предоставя бърз и лесен достъп до ключови обекти, градски транспорт, болница, медицински центрове и лаборатории, офиси, учебни заведения и детски градини, магазини, спортни и детски площадки, паркове и всичко необходимо за вашият комфорт.

Всички обекти ще бъдат предадени в степен на завършеност на тапа при заложено високо качество на материалите, с на 100% завършени общи части на сградата.
Строителният процес стартира м. август 2025 г. и ще продължи 24 месеца.

Предлагаме Ви апартамент с една спалня в напреднал етап на строителство, с обща площ 71,29 кв.м на ет.2 (първи жилищен).
Разпределението на имота е както следва:
✅дневна с трапезария и кухненски кът - 21,58 кв.м;
✅спалня - 14,77 кв.м.;
✅санитарен възел (баня/WC) - 3,84 кв.м.;
✅склад - 1,36 кв.м.;
✅входно антре/коридор - 4,23 кв.м.;
✅тераса с излаз от дневната - 4,88 кв.м..

Възможност за разсрочено плащане!

Възможност за закупуване на подземно ПМ (25000 - 30000 ).

Агенцията Ви предоставя съдействие при банково кредитиране!

За повече информация и актуални оферти свържете се с нас на посочените телефони или посетете нашият сайт: http://infomax-bg.com/.
ИНФОМАКС е член на НСНИ и администратор на лични данни.

Реф. 110292

Приблизителна локация
Връзка с продавача
имоти за продажба без посредник (11230) имоти под наем без посредник (11230) имоти за продажба (11230) имоти под наем (11230) апартаменти под наем без посредник (6669) апартаменти за продажба (6669) апартаменти за продажба без посредник (6669) апартаменти под наем (6669) имоти за продажба в гр. София, Мусагеница без посредник (3217) имоти за продажба в гр. София, ПЗ Илиянци без посредник (3217) имоти за продажба в гр. София, Свобода без посредник (3217) имоти за продажба в гр. София, Горна баня без посредник (3217) имоти за продажба в гр. София, Изгрев без посредник (3217) имоти за продажба в гр. София, Славовци без посредник (3217) имоти за продажба в гр. София, Света Троица без посредник (3217) имоти за продажба в гр. София, Левски Г без посредник (3217) имоти за продажба в гр. София, Горубляне без посредник (3217) имоти за продажба в гр. София, Овча купел без посредник (3217) имоти за продажба в гр. София, м-т Орехите без посредник (3217) имоти за продажба в гр. София, Люлин 7 без посредник (3217) имоти за продажба в гр. София, Илиянци без посредник (3217) имоти за продажба в гр. София, Младост 1А без посредник (3217) имоти за продажба в гр. София, в.з. Беловодски път без посредник (3217) имоти за продажба в гр. София, Полигона без посредник (3217) имоти за продажба в гр. София, Разсадника без посредник (3217) имоти за продажба в гр. София, Подуяне без посредник (3217) имоти за продажба в гр. София, Красна поляна 3 без посредник (3217) имоти за продажба в гр. София, Младост 2 без посредник (3217) имоти за продажба в гр. София, Надежда 4 без посредник (3217) имоти за продажба в гр. София, в.з. Горна баня без посредник (3217) имоти за продажба в гр. София, Надежда 2 без посредник (3217) имоти за продажба в гр. София, в.з. Врана - Герман без посредник (3217) имоти за продажба в гр. София, НПЗ Хаджи Димитър без посредник (3217) имоти за продажба в гр. София, Павлово без посредник (3217) имоти за продажба в гр. София, в.з. Врана - Лозен без посредник (3217) имоти за продажба в гр. София, Суходол без посредник (3217) имоти за продажба в гр. София, Кубратово без посредник (3217) имоти за продажба в гр. София, Борово без посредник (3217) имоти за продажба в гр. София, Драгалевци без посредник (3217) имоти за продажба в гр. София, Белите брези без посредник (3217) имоти за продажба в гр. София, в.з. Драгалевци лифта без посредник (3217) имоти за продажба в гр. София, Илинден без посредник (3217) имоти за продажба в гр. София, Хиподрума без посредник (3217) имоти за продажба в гр. София, Лагера без посредник (3217) имоти за продажба в гр. София, Модерно предградие без посредник (3217) имоти за продажба в гр. София, Гоце Делчев без посредник (3217) имоти за продажба в гр. София, Красна поляна 1 без посредник (3217) имоти за продажба в гр. София, Център без посредник (3217) имоти за продажба в гр. София, Малинова долина без посредник (3217) имоти за продажба в гр. София, Меден рудник - зона Г без посредник (3217)