117 818 €

1 006 € /кв.м.

Апартамент 3-стаен в Меден рудник - зона В с асансьор

Продажба Бургас Меден рудник - зона В Обновена: 1 Апр 2026
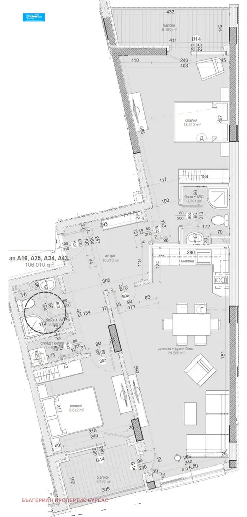
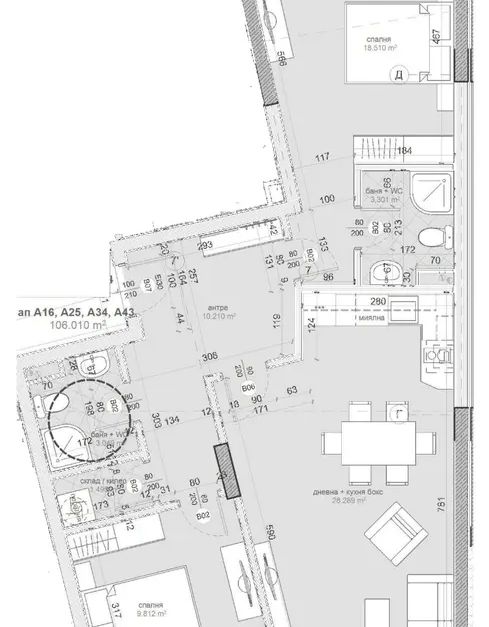
117 м²
Тухла
4 /8 ет.
2029 г.

Обяви за този имот (1)

117 818 €
1
1 Яну 0001  ·  1 Апр 2026

Коментар от imotesa

AI обобщение

Апартамент с площ 117 кв.м. в град Бургас, квартал Меден рудник - зона В. Намира се на 4-ти етаж от 8 в нова сграда, строителство тухла, с предстоящо завършване през 2029 г.

Разпределението е функционално с три стаи, подходящи за семейно жилище, като жилището се предлага по БДС стандарт, което позволява индивидуално довършване. В сградата има асансьор и възможност за закупуване на гараж или паркомясто.

Сградата е с модерна конструкция, осигуряваща достъп до интернет и контрол на достъпа. Проектът включва и партерни магазини, което допринася за удобствата в комплекса.

Локацията е комуникативна, с лесен достъп до градски транспорт, училище, детска градина и хипермаркет, което осигурява удобства за ежедневието.

Имотът е подходящ за живеене или инвестиция, като съчетава функционалност и добра градска локация.

Разпределение

  • двустайни
  • тристайни

Предимства

функционално разпределение

асансьор

нова сграда

добра локация

Недостатъци

Няма налични данни за недостатъци.

Детайли

Площ
117 м²
Етаж
4 от 8
Строителство
brick
Год. на строителство
2029 г.
Обзавеждане
Да

Особености

elevator
internet
access-control

Описание от продавача

За повече информация обадете ни се на тел: 0882 817 497 или 056 828 449 и цитирайте референтния номер на имота: BS 89903.

Отговорен брокер: Павел Раванов

Без комисионна от купувача!

Апартамент A34 , обща площ 117.82 кв.м. (нетна площ 99.58 кв.м. + общи части 18.23 кв.м.).

Представяме Ви нов жилищен проект, разположен в динамично развиващия се ж.к. Меден рудник в Бургас, в района на бившия битак. Локацията е изключително комуникативна, с директен достъп до основни транспортни артерии и удобства от първа необходимост.

Проектът се намира на централен булевард, в непосредствена близост до терминал на градския транспорт, хипермаркет, училище и детска градина всичко необходимо за комфортен и практичен начин на живот.

Сградата е проектирана на девет етажа с два входа и съчетава жилищни и търговски функции, създавайки модерна градска среда.

Удобства в комплекса
Партерни магазини
Възможност за закупуване на подземни и надземни гаражи и паркоместа
Функционални двустайни и тристайни апартаменти
Отлична локация с лесен достъп

Жилищата се предлагат по БДС стандарт (на тапа), което позволява на бъдещите собственици да реализират интериора според своя вкус и стил.

Планиран старт на строителството - 01.06.2026. Срокът за изпълнение на проекта е 36 месеца от старта на строителството.

Схема на плащане
10% при подписване на предварителен договор
30% при достигнато строително ниво и линия
30% при изпълнена плоча на съответния етаж
20% при издаване на Акт 14
5% при издаване на Акт 15
5% при издаване на Акт 16

Предимства на имота
Отлична градска локация
Разнообразие от апартаменти
Подходящ както за живеене, така и за инвестиция
Гъвкава схема на плащане
Възможност за покупка на гараж или паркомясто

Този проект е отличен избор за клиенти, които търсят ново строителство с добра локация, функционални жилища и сигурна инвестиция в един от най-развитите райони на Бургас.

Оглед на имота
Можем да организираме оглед на имота спрямо нашия график и възможностите за достъп до него. Заявете вашето желание за оглед, като се свържете с отговорния за офертата брокер по имейл или телефон.

Резервация на имота
Имотът може да бъде резервиран и свален от продажба със заплащане на депозит, след което се прекратява провеждането на огледи с други купувачи и започва подготовка на документите за сключване на предварителен и окончателен договор. Свържете се с отговорния брокер за подробна информация относно процедурата ...

Точен адрес

Връзка с продавача
имоти за продажба без посредник (11230) имоти под наем без посредник (11230) имоти за продажба (11230) имоти под наем (11230) апартаменти под наем без посредник (6669) апартаменти за продажба (6669) апартаменти за продажба без посредник (6669) апартаменти под наем (6669) имоти за продажба в гр. София, Мусагеница без посредник (3217) имоти за продажба в гр. София, ПЗ Илиянци без посредник (3217) имоти за продажба в гр. София, Свобода без посредник (3217) имоти за продажба в гр. София, Горна баня без посредник (3217) имоти за продажба в гр. София, Изгрев без посредник (3217) имоти за продажба в гр. София, Славовци без посредник (3217) имоти за продажба в гр. София, Света Троица без посредник (3217) имоти за продажба в гр. София, Левски Г без посредник (3217) имоти за продажба в гр. София, Горубляне без посредник (3217) имоти за продажба в гр. София, Овча купел без посредник (3217) имоти за продажба в гр. София, м-т Орехите без посредник (3217) имоти за продажба в гр. София, Люлин 7 без посредник (3217) имоти за продажба в гр. София, Илиянци без посредник (3217) имоти за продажба в гр. София, Младост 1А без посредник (3217) имоти за продажба в гр. София, в.з. Беловодски път без посредник (3217) имоти за продажба в гр. София, Полигона без посредник (3217) имоти за продажба в гр. София, Разсадника без посредник (3217) имоти за продажба в гр. София, Подуяне без посредник (3217) имоти за продажба в гр. София, Красна поляна 3 без посредник (3217) имоти за продажба в гр. София, Младост 2 без посредник (3217) имоти за продажба в гр. София, Надежда 4 без посредник (3217) имоти за продажба в гр. София, в.з. Горна баня без посредник (3217) имоти за продажба в гр. София, Надежда 2 без посредник (3217) имоти за продажба в гр. София, в.з. Врана - Герман без посредник (3217) имоти за продажба в гр. София, НПЗ Хаджи Димитър без посредник (3217) имоти за продажба в гр. София, Павлово без посредник (3217) имоти за продажба в гр. София, в.з. Врана - Лозен без посредник (3217) имоти за продажба в гр. София, Суходол без посредник (3217) имоти за продажба в гр. София, Кубратово без посредник (3217) имоти за продажба в гр. София, Борово без посредник (3217) имоти за продажба в гр. София, Драгалевци без посредник (3217) имоти за продажба в гр. София, Белите брези без посредник (3217) имоти за продажба в гр. София, в.з. Драгалевци лифта без посредник (3217) имоти за продажба в гр. София, Илинден без посредник (3217) имоти за продажба в гр. София, Хиподрума без посредник (3217) имоти за продажба в гр. София, Лагера без посредник (3217) имоти за продажба в гр. София, Модерно предградие без посредник (3217) имоти за продажба в гр. София, Гоце Делчев без посредник (3217) имоти за продажба в гр. София, Красна поляна 1 без посредник (3217) имоти за продажба в гр. София, Център без посредник (3217) имоти за продажба в гр. София, Малинова долина без посредник (3217) имоти за продажба в гр. София, Меден рудник - зона Г без посредник (3217)