135 000 €

1 467 € /кв.м.

Тристаен апартамент в Изгрев, Бургас с гледка към града

Продажба Бургас Изгрев Обновена: 26 Март 2026
92 м²
Тухла
2 бани
8 /9 ет.
2026 г.

Коментар от imotesa

AI обобщение

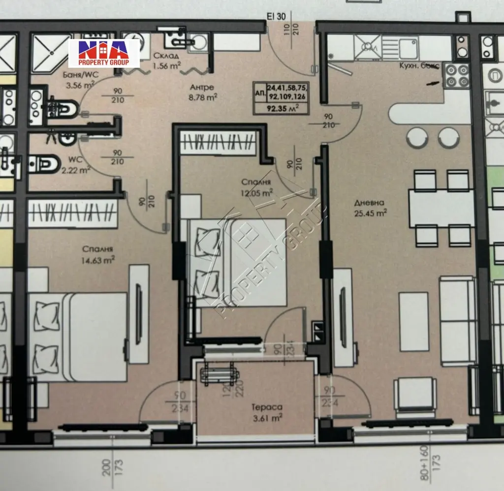
Апартамент с площ 92 кв.м, разположен на 8-ми етаж в квартал Изгрев, гр. Бургас. Имотът включва 2 спални, хол с кухненски бокс, 2 тоалетни, баня и тераса.

Разпределение

  • спалня
  • спалня
  • хол

Предимства

функционално разпределение

нова сграда

гледка към града

качествени материали

Недостатъци

Няма налични данни за недостатъци.

Детайли

Площ
92 м²
Бани
2
Етаж
8 от 9
Строителство
brick
Год. на строителство
2026 г.

Описание от продавача

Референтен номер: 5303.

Ниа Пропърти Груп предлага за продажба тристаен апартамент в квартал Мадика, гр. Бургас.


Апартамент с 2 спални, хол с кухненски бокс, 2 тоалетни, баня и тераса. Имотът е 92 квадрата на 8-ми, не последен етаж, с гледка към града, в квартал "Мадика". Чисто нов комплекс разполагащ със:


191 парко места

Гледка към града

Газификация

Детска площадка

Целодневен детски център

Салон за красота и сладкарница

Търговска зона

Ниска такса поддръжка 5 евро на кв.

Град Бургас се разраства с нов, модерен жилищен квартал – Мадика. Разположен в югозападната част на града, кварталът предлага съвременна архитектура и множество удобства за бъдещите си жители. Намира се в непосредствена близост до ключови пътни артерии, осигуряващи бърз достъп до центъра на Бургас и околните райони. Кварталът ще разполага с добре развита транспортна мрежа, включително автобусни линии и велоалеи, което ще улесни придвижването на жителите му. Проектът за Мадика включва изграждането на разнообразни типове жилища – от компактни до просторни апартаменти. Всички сгради ще бъдат построени с висококачествени материали и съобразени със съвременните енергийни стандарти, осигуряващи ниски разходи за отопление и охлаждане.Кварталът ще разполага със зелени площи, детски площадки, спортни съоръжения и търговски зони, което ще създаде комфортна и приятна среда за живеене. Планирани са също така училища, детски градини и медицински центрове, които ще отговарят на нуждите на семействата с деца. Мадика ще бъде пример за устойчиво градско развитие, с акцент върху запазването на околната среда. Планирани са множество зелени пространства, паркове и алеи, които ще създадат екологично балансирана среда. Системи за събиране и рециклиране на отпадъци, както и използването на възобновяеми енергийни източници, са само част от инициативите за устойчиво развитие в квартала.

Приблизителна локация
Връзка с продавача