-8% на пазара

спрямо ≈ 1 964 € /кв.м

164 600 €

2 110 € /кв.м.

Тристаен апартамент в Бургас, Зорница

Продажба Бургас Зорница Обновена: 6 Март 2026
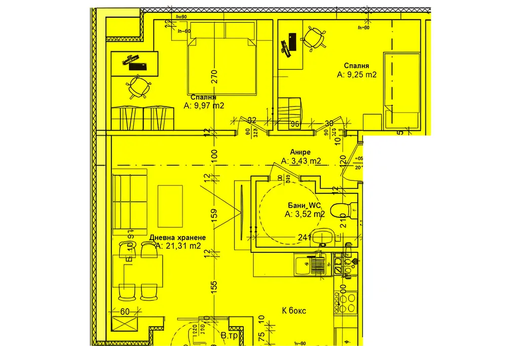
78 м²
Тухла
3 /4 ет.
2026 г.

Доходност от наем: 4.4% /год. Средна инвестиционна оценка

-8% на пазара (2 110 €/кв.м спрямо 1 964 €/кв.м)
Потенциална годишна доходност: 4.4% (база: ~604 €/мес)
Инвестиционен клас: Средна

Детайли

Площ
78 м²
Стаи
3
Етаж
3 от 4
Строителство
brick
Год. на строителство
2026 г.

Особености

parking

Описание от продавача

Продавам тристаен апартамент в малка бутикова сграда в района на болницата в квартал Зорница. Изключително удобно месторазположение. Елегантна сграда, ниско застрояване с малко на брой апартаменти, което придава изключителна приватност на имотите.
Апартаментът е на трети етаж. Две спални, хол, кухненска част, коридор, тераса. Има и паркоместо за допълнително плащане. Текат строителни дейности, но апартамента може да се види с предварителна уговорка.

Приблизителна локация
Връзка с продавача