6% на пазара

спрямо ≈ 1 964 € /кв.м

211 487 €

1 855 € /кв.м.

Тристаен апартамент в Бургас, Зорница

Продажба Бургас Зорница Обновена: 6 Март 2026
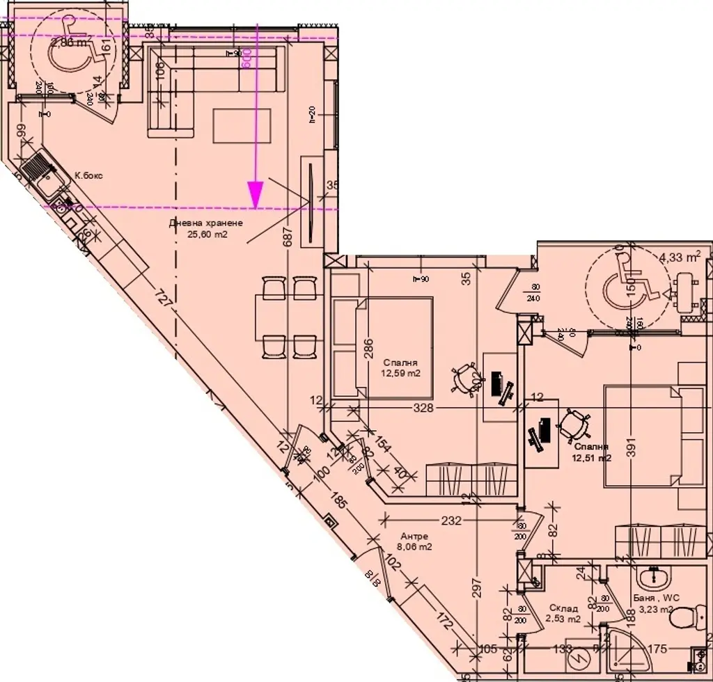
114 м²
Тухла
2 /4 ет.
2026 г.
6% на пазара (1 855 €/кв.м спрямо 1 964 €/кв.м)

Детайли

Площ
114 м²
Стаи
3
Етаж
2 от 4
Строителство
brick
Год. на строителство
2026 г.

Особености

elevator
parking

Описание от продавача

БЕЗ КОМИСИОННА ОТ КУПУВАЧ!!! БЕЗ ТАКСА ПОДРЪЖКА!!!
Предлагаме ви продажба на чудесен тристаен апртамент в жилищен комплекс Зорница точно до УМБАЛ - гр. Бургас. Апартаментът е с обща площ от 114 кв.м, на втори етаж и се състои от входно антре, склад, всекидневна с кухненска част, две спални, баня/WC и две тераси.
С възможност за закупуване на ПАРКОМЯСТО или ГАРАЖ в сградата!
Строителният процес на сградата започна през месец юли 2024г. и ще продължи 24мес.
Call us - we speak: Bulgarian, English, Russian, Turkish and German.
КОД НА ОФЕРТА: 177131

Доверете ни се, при нас е различно.

Точен адрес

Връзка с продавача