Нетипично ниска цена

спрямо ≈ 1 702 € /кв.м

155 000 €

968 € /кв.м.

Тристаен апартамент в Бургас, Сарафово

Продажба Бургас Сарафово Обновена: 20 Март 2026
160 м²
Тухла
0 /5 ет.
2024 г.
Нетипично ниска цена (968 €/кв.м спрямо 1 702 €/кв.м)

Детайли

Площ
160 м²
Стаи
3
Етаж
0 от 5
Строителство
brick
Год. на строителство
2024 г.

Особености

elevator

Описание от продавача

Код:2168
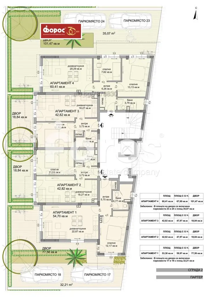
Тристаен апартамент със собствен двор и две паркоместа, с Акт 16, в кв.Сарафово, без такса поддръжка.
СГРАДАТА е разположен на втора линия от морския бряг, на 50 метра от северния плаж на Сарафово.
Наблизо има автобусна спирка на градския транспорт, магазини за хранителни стоки, заведения за хранене.
Разрешение за експлоатация от 2024год.
Жилището се намира на ПАРТЕР, с чиста площ от 85 кв.м., общи части 5 кв.м., две паркоместа с площ от 35 кв.м. и двор с площ от 41 кв.м.
Състои се от хол свързан с кухня-трапезария, две отделни спални, баня с тоалет общо, склад и двор с две паркоместа.
Апартаментът е завършен до тапа, под на циментова замазка, стени и тавани с гипсова шпакловка и боядисани с латекс, ел инсталация завършена до ключове и контакти, ВиК на тапа.
Входна метална врата, тераси с теракот и метални парапети, общи части на сградата завършени на 100%, монтиран асансьор.
Жилището е подходящо за ежегодно или ваканционно ползване.
Брокер за контакти:Ирен Рангелова

Приблизителна локация
Връзка с продавача