-14% под пазара

спрямо ≈ 2 095 € /кв.м

140 000 €

1 794 € /кв.м.

Тристаен апартамент в Бургас, Изгрев

Продажба Бургас Изгрев Обновена: 3 Апр 2026
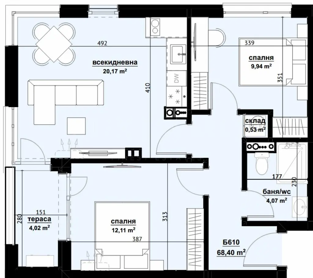
78 м²
Тухла
4 /9 ет.
2028 г.

Доходност от наем: 5.6% /год. Средна инвестиционна оценка

Обяви за този имот (1)

140 000 €
1
1 Яну 0001  ·  3 Апр 2026
-14% под пазара (1 794 €/кв.м спрямо 2 095 €/кв.м)
Потенциална годишна доходност: 5.6% (база: ~654 €/мес)
Инвестиционен клас: Средна

Детайли

Площ
78 м²
Стаи
3
Етаж
4 от 9
Строителство
brick
Год. на строителство
2028 г.

Особености

elevator

Описание от продавача

LUXIMMO FINEST ESTATES: www.luximmo.bg
Предварителни продажби!
Старт на строителството - ноември 2025 г.
Срок - 30 месеца.

Представяме за продажба тристаен апартамент, в нова девететажна сграда на иновативния жилищен комплекс, до Mall Grand Plaza в кв. 'Хоризонт', Бургас.

Покупка без комисиона.

В концепцията на комплекса са заложени принципи за комфортен живот, с удобства за нуждите на едно съвременно семейство, в спокойна и озеленена среда за обитаване. Новата сграда ще надгради стандарта за качествена среда на живот в града, с голяма доза блясък и лукс. Сградата ще впечатлява с елегантния си архитектурен дизайн и престижната съвременна визия.

Имотът е с обща площ от 78,61 кв.м, разположен на 6-и етаж с изложение север/изток.

Разпределение:
антре/коридор;
дневна с кухня;
две спални;
склад;
баня с тоалет;
тераса.

Жилището се издава завършено по БДС:
подови настилки циментова замазка;
тераси - гранитогрес;
общи части на сградата: гранит и/или гранитогрес;
външни стени с топлоизолация, съгласно Енергийната ефективност на проекта;
вътрешни стени машинна гипсова мазилка;
общи части на сградата - стени с положена машинна гипсова мазилка и боядисани;
тавани - бетонна плоча с положена конструкция от гипсокартон;
петкамерна PVC дограма с 32 мм стъклопакет, външно стъкло от 4мм високоенергийно, двуосни механизми за отваряне;
входни врати метални блиндирани;
ВиК инсталация - тръбна мрежа съгласно одобрен проект, свързана с ВиК мрежата на града;
електрическа инсталация изградена напълно с изводи за лампи, за електрически ключове и контакти;
асансьори завършена строителна част и монтирани машини и ел. част с необходимите изпитвания съобразно проекта;
инсталационни шахти и комини, мълниезащита - по одобрен проект.

Удобства на територията:
модерен ресторант;
фитнес зала;
бизнес център;
СПА център с площ над 1200 кв.м.
голям плувен басейн, детски ...

За повече информация свържете се с нас и цитирайте референтния номер на имота. Моля, кажете, че сте видeли обявата в този сайт.
Референтен номер: LXH-131956
Тел: 0887 420 783, 056 701 465
Отговорен брокер:Теодора Иванова
Без комисиона от купувача

Точен адрес

Връзка с продавача
имоти за продажба без посредник (11265) имоти под наем без посредник (11265) имоти за продажба (11265) имоти под наем (11265) апартаменти под наем без посредник (6684) апартаменти за продажба (6684) апартаменти за продажба без посредник (6684) апартаменти под наем (6684) имоти за продажба в гр. София, Мусагеница без посредник (3225) имоти за продажба в гр. София, ПЗ Илиянци без посредник (3225) имоти за продажба в гр. София, Свобода без посредник (3225) имоти за продажба в гр. София, Горна баня без посредник (3225) имоти за продажба в гр. София, Изгрев без посредник (3225) имоти за продажба в гр. София, Славовци без посредник (3225) имоти за продажба в гр. София, Света Троица без посредник (3225) имоти за продажба в гр. София, Левски Г без посредник (3225) имоти за продажба в гр. София, Горубляне без посредник (3225) имоти за продажба в гр. София, Овча купел без посредник (3225) имоти за продажба в гр. София, м-т Орехите без посредник (3225) имоти за продажба в гр. София, Люлин 7 без посредник (3225) имоти за продажба в гр. София, Илиянци без посредник (3225) имоти за продажба в гр. София, Младост 1А без посредник (3225) имоти за продажба в гр. София, в.з. Беловодски път без посредник (3225) имоти за продажба в гр. София, Полигона без посредник (3225) имоти за продажба в гр. София, Разсадника без посредник (3225) имоти за продажба в гр. София, Подуяне без посредник (3225) имоти за продажба в гр. София, Красна поляна 3 без посредник (3225) имоти за продажба в гр. София, Младост 2 без посредник (3225) имоти за продажба в гр. София, Надежда 4 без посредник (3225) имоти за продажба в гр. София, в.з. Горна баня без посредник (3225) имоти за продажба в гр. София, Надежда 2 без посредник (3225) имоти за продажба в гр. София, в.з. Врана - Герман без посредник (3225) имоти за продажба в гр. София, НПЗ Хаджи Димитър без посредник (3225) имоти за продажба в гр. София, Павлово без посредник (3225) имоти за продажба в гр. София, в.з. Врана - Лозен без посредник (3225) имоти за продажба в гр. София, Суходол без посредник (3225) имоти за продажба в гр. София, Кубратово без посредник (3225) имоти за продажба в гр. София, Борово без посредник (3225) имоти за продажба в гр. София, Драгалевци без посредник (3225) имоти за продажба в гр. София, Белите брези без посредник (3225) имоти за продажба в гр. София, в.з. Драгалевци лифта без посредник (3225) имоти за продажба в гр. София, Илинден без посредник (3225) имоти за продажба в гр. София, Хиподрума без посредник (3225) имоти за продажба в гр. София, Лагера без посредник (3225) имоти за продажба в гр. София, Модерно предградие без посредник (3225) имоти за продажба в гр. София, Гоце Делчев без посредник (3225) имоти за продажба в гр. София, Красна поляна 1 без посредник (3225) имоти за продажба в гр. София, Център без посредник (3225) имоти за продажба в гр. София, Малинова долина без посредник (3225) имоти за продажба в гр. София, Меден рудник - зона Г без посредник (3225)