7% на пазара

спрямо ≈ 1 043 € /кв.м

81 230 €

967 € /кв.м.

Тристаен апартамент в Бургас, Долно Езерово

Продажба Бургас Долно Езерово Обновена: 4 Апр 2026
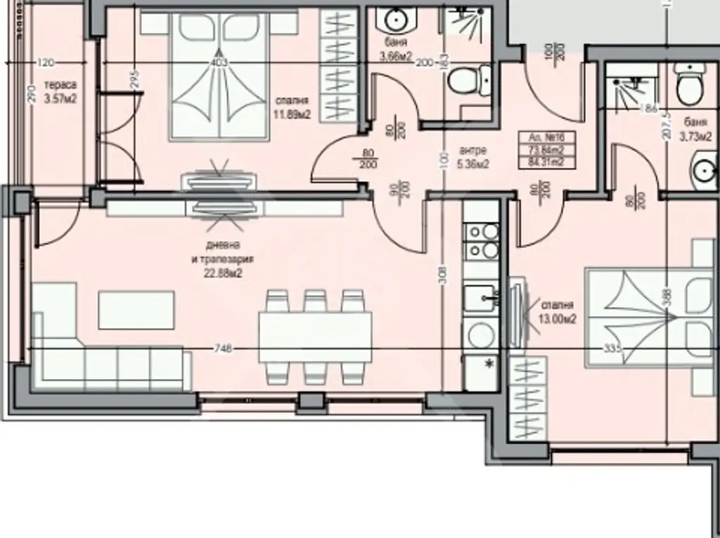
84 м²
Тухла
3 стаи

Обяви за този имот (1)

81 230 €
1
1 Яну 0001  ·  4 Апр 2026
7% на пазара (967 €/кв.м спрямо 1 043 €/кв.м)

Детайли

Площ
84 м²
Стаи
3
Строителство
brick

Описание от продавача

Компания Х представя на Вашето внимание тристаен апартамент в Долно Езерово.

МЕСТОПОЛОЖЕНИЕ: Намира се в спокойна част на района, в близост до хранителен магаизн както и спирка на градски транспорт.

СТРОИТЕЛСТВО: Апартаментът е разположен на втори етаж, тухла.

РАЗПРЕДЕЛЕНИЕ: Жилището разполага с площ 84кв.м., състои се от хол с кухненски бокс, две спални, две бани с тоалетна и тераса.

СЪСТОЯНИЕ: Имотът се предлага на степен до ключ, което Ви дава възможността да го устроите по Ваш вкус!

Заповядайте да Ви го покажем. Използвайки нашите услуги Вие ще превърнете закупуването на новия си дом в едно приятно изживяване, ще получите персонален консултант, съдействие при кандидатстване за кредит от всички банки в България, интериорни дизайнери и екип, който да се погрижи за нужните документи по Вашата сделка. На Ваше разположение сме всеки ден, от понеделник до неделя от 09:00 до 20:00ч. Възползвайте се от безплатна консултация в наш офис, където ще ви спестим време и ще ви запознаем с всички актуални имоти в България, отговарящи на Вашето търсене. Свържете се с нас на 0887779990 или на 0882009283 и цитирайте кода към имота: 65868

Приблизителна локация
Връзка с продавача
имоти за продажба без посредник (11265) имоти под наем без посредник (11265) имоти за продажба (11265) имоти под наем (11265) апартаменти под наем без посредник (6684) апартаменти за продажба (6684) апартаменти за продажба без посредник (6684) апартаменти под наем (6684) имоти за продажба в гр. София, Мусагеница без посредник (3225) имоти за продажба в гр. София, ПЗ Илиянци без посредник (3225) имоти за продажба в гр. София, Свобода без посредник (3225) имоти за продажба в гр. София, Горна баня без посредник (3225) имоти за продажба в гр. София, Изгрев без посредник (3225) имоти за продажба в гр. София, Славовци без посредник (3225) имоти за продажба в гр. София, Света Троица без посредник (3225) имоти за продажба в гр. София, Левски Г без посредник (3225) имоти за продажба в гр. София, Горубляне без посредник (3225) имоти за продажба в гр. София, Овча купел без посредник (3225) имоти за продажба в гр. София, м-т Орехите без посредник (3225) имоти за продажба в гр. София, Люлин 7 без посредник (3225) имоти за продажба в гр. София, Илиянци без посредник (3225) имоти за продажба в гр. София, Младост 1А без посредник (3225) имоти за продажба в гр. София, в.з. Беловодски път без посредник (3225) имоти за продажба в гр. София, Полигона без посредник (3225) имоти за продажба в гр. София, Разсадника без посредник (3225) имоти за продажба в гр. София, Подуяне без посредник (3225) имоти за продажба в гр. София, Красна поляна 3 без посредник (3225) имоти за продажба в гр. София, Младост 2 без посредник (3225) имоти за продажба в гр. София, Надежда 4 без посредник (3225) имоти за продажба в гр. София, в.з. Горна баня без посредник (3225) имоти за продажба в гр. София, Надежда 2 без посредник (3225) имоти за продажба в гр. София, в.з. Врана - Герман без посредник (3225) имоти за продажба в гр. София, НПЗ Хаджи Димитър без посредник (3225) имоти за продажба в гр. София, Павлово без посредник (3225) имоти за продажба в гр. София, в.з. Врана - Лозен без посредник (3225) имоти за продажба в гр. София, Суходол без посредник (3225) имоти за продажба в гр. София, Кубратово без посредник (3225) имоти за продажба в гр. София, Борово без посредник (3225) имоти за продажба в гр. София, Драгалевци без посредник (3225) имоти за продажба в гр. София, Белите брези без посредник (3225) имоти за продажба в гр. София, в.з. Драгалевци лифта без посредник (3225) имоти за продажба в гр. София, Илинден без посредник (3225) имоти за продажба в гр. София, Хиподрума без посредник (3225) имоти за продажба в гр. София, Лагера без посредник (3225) имоти за продажба в гр. София, Модерно предградие без посредник (3225) имоти за продажба в гр. София, Гоце Делчев без посредник (3225) имоти за продажба в гр. София, Красна поляна 1 без посредник (3225) имоти за продажба в гр. София, Център без посредник (3225) имоти за продажба в гр. София, Малинова долина без посредник (3225) имоти за продажба в гр. София, Меден рудник - зона Г без посредник (3225)