4% на пазара

спрямо ≈ 1 465 € /кв.м

137 912 €

1 407 € /кв.м.

Тристаен апартамент в Бургас, Хоризонт

Продажба Бургас Хоризонт Обновена: 21 Март 2026
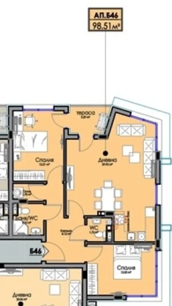
98 м²
Панел
5 /9 ет.
2028 г.
4% на пазара (1 407 €/кв.м спрямо 1 465 €/кв.м)

Детайли

Площ
98 м²
Стаи
3
Етаж
5 от 9
Строителство
panel
Год. на строителство
2028 г.

Особености

elevator
video-surveillance
access-control

Описание от продавача

Без комисионна. Директно от строителя. Предлагаме за продажба просторен и функционален тристаен апартамент, разположен на 5-ти етаж в модерна жилищна сграда в престижния квартал Хоризонт, град Бургас. Апартаментът е с отлично разпределение, включващо дневна с кухненски бокс, две спалня, баня с тоалетна и отделна тоалетна, антре и една тераса.



Локация и предимства:

Отлична комуникация и инфраструктура

В непосредствена близост до МОЛ, голям градски парк и училища

Спокоен и зелен район, подходящ за семейства и инвестиция

Развиваща се част на града с висок потенциал за бъдеща стойност



Сграда:
Съвременно тухлено строителство с висококачествени материали и луксозно завършени общи части. Сградата ще разполага с асансьор и контрол на достъпа.

Начало на строителството: септември 2025 г.

Приблизителна локация
Връзка с продавача