0% на пазара

спрямо ≈ 1 507 € /кв.м

101 000 €

1 507 € /кв.м.

Двустаен апартамент с тераса в Крайморие, Бургас

Продажба Бургас Крайморие Обновена: 4 Апр 2026
67 м²
Тухла
2 стаи
3 /4 ет.

Обяви за този имот (1)

101 000 €
1
1 Яну 0001  ·  4 Апр 2026
0% на пазара (1 507 €/кв.м спрямо 1 507 €/кв.м)

Коментар от imotesa

AI обобщение

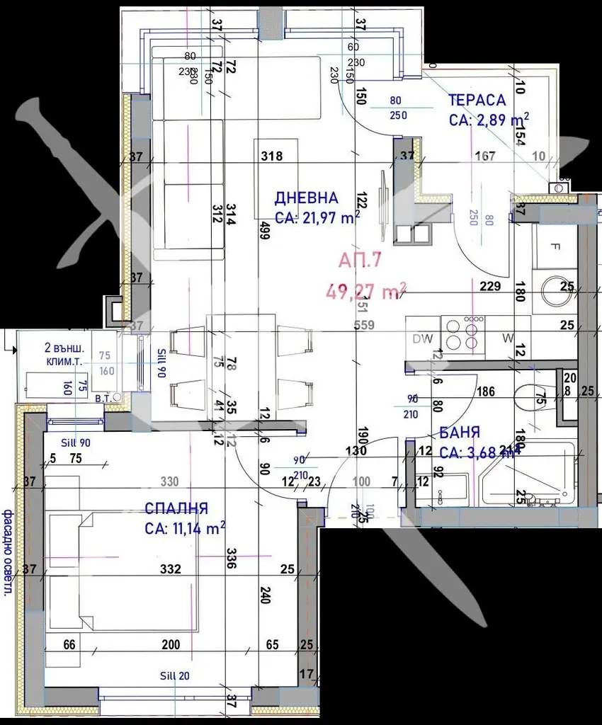
Апартаментът се намира в Крайморие, град Бургас, и предлага жилищна площ от 67 кв.м. Разпределението включва хол с кухня, спалня, склад, баня с тоалетна и тераса, което осигурява функционално използване на пространството. Жилището е в сграда с тухлено строителство, разположено на трети от четири етажа. Имотът се предлага на тапа или на степен до ключ, което позволява персонализиране според нуждите на купувача. Крайморие е район с достъп до плажове и минерални бани, подходящ за отдих и културен туризъм. Този имот е подходящ за хора, търсещи удобен морски дом с възможност за довършителни работи.

Разпределение

  • хол с кухня
  • спалня
  • склад
  • баня
  • тераса

Предимства

функционално разпределение

тераса

тухлено строителство

морска локация

Недостатъци

нужда от довършителни работи

Детайли

Площ
67 м²
Стаи
2
Бани
1
Етаж
3 от 4
Строителство
brick

Описание от продавача

Компания Х представя на Вашето внимание двустаен апартамент в Крайморие.

МЕСТОПОЛОЖЕНИЕ: Крайморие предлага уникално съчетание от живописни плажове, минерални бани и исторически забележителности, което го прави идеално място за отдих и културен туризъм.

СТРОИТЕЛСТВО: Апартаментът е разположен на трети , тухла.

РАЗПРЕДЕЛЕНИЕ: Жилището разполага с площ 67,26 кв.м., състои се от хол с кухня,спалня, склад, баня с тоалетна и тераса.

СЪСТОЯНИЕ: Имотът се предлага както на тапа, така и на степен до ключ, което Ви дава възможността да го усторите по Ваш вкус и да го превърнете в мечтания дом!

Заповядайте да Ви го покажем. Използвайки нашите услуги Вие ще превърнете закупуването на новия си дом в едно приятно изживяване, ще получите персонален консултант, съдействие при кандидатстване за кредит от всички банки в България, интериорни дизайнери и екип, който да се погрижи за нужните документи по Вашата сделка. На Ваше разположение сме всеки ден, от понеделник до неделя от 09:00 до 20:00ч. Възползвайте се от безплатна консултация в наш офис, където ще ви спестим време и ще ви запознаем с всички актуални имоти в България, отговарящи на Вашето търсене. Свържете се с нас на 0887779990 или на 0882009283 и цитирайте кода към имота: 925-27031

Приблизителна локация
Връзка с продавача
имоти за продажба без посредник (11265) имоти под наем без посредник (11265) имоти за продажба (11265) имоти под наем (11265) апартаменти под наем без посредник (6684) апартаменти за продажба (6684) апартаменти за продажба без посредник (6684) апартаменти под наем (6684) имоти за продажба в гр. София, Мусагеница без посредник (3225) имоти за продажба в гр. София, ПЗ Илиянци без посредник (3225) имоти за продажба в гр. София, Свобода без посредник (3225) имоти за продажба в гр. София, Горна баня без посредник (3225) имоти за продажба в гр. София, Изгрев без посредник (3225) имоти за продажба в гр. София, Славовци без посредник (3225) имоти за продажба в гр. София, Света Троица без посредник (3225) имоти за продажба в гр. София, Левски Г без посредник (3225) имоти за продажба в гр. София, Горубляне без посредник (3225) имоти за продажба в гр. София, Овча купел без посредник (3225) имоти за продажба в гр. София, м-т Орехите без посредник (3225) имоти за продажба в гр. София, Люлин 7 без посредник (3225) имоти за продажба в гр. София, Илиянци без посредник (3225) имоти за продажба в гр. София, Младост 1А без посредник (3225) имоти за продажба в гр. София, в.з. Беловодски път без посредник (3225) имоти за продажба в гр. София, Полигона без посредник (3225) имоти за продажба в гр. София, Разсадника без посредник (3225) имоти за продажба в гр. София, Подуяне без посредник (3225) имоти за продажба в гр. София, Красна поляна 3 без посредник (3225) имоти за продажба в гр. София, Младост 2 без посредник (3225) имоти за продажба в гр. София, Надежда 4 без посредник (3225) имоти за продажба в гр. София, в.з. Горна баня без посредник (3225) имоти за продажба в гр. София, Надежда 2 без посредник (3225) имоти за продажба в гр. София, в.з. Врана - Герман без посредник (3225) имоти за продажба в гр. София, НПЗ Хаджи Димитър без посредник (3225) имоти за продажба в гр. София, Павлово без посредник (3225) имоти за продажба в гр. София, в.з. Врана - Лозен без посредник (3225) имоти за продажба в гр. София, Суходол без посредник (3225) имоти за продажба в гр. София, Кубратово без посредник (3225) имоти за продажба в гр. София, Борово без посредник (3225) имоти за продажба в гр. София, Драгалевци без посредник (3225) имоти за продажба в гр. София, Белите брези без посредник (3225) имоти за продажба в гр. София, в.з. Драгалевци лифта без посредник (3225) имоти за продажба в гр. София, Илинден без посредник (3225) имоти за продажба в гр. София, Хиподрума без посредник (3225) имоти за продажба в гр. София, Лагера без посредник (3225) имоти за продажба в гр. София, Модерно предградие без посредник (3225) имоти за продажба в гр. София, Гоце Делчев без посредник (3225) имоти за продажба в гр. София, Красна поляна 1 без посредник (3225) имоти за продажба в гр. София, Център без посредник (3225) имоти за продажба в гр. София, Малинова долина без посредник (3225) имоти за продажба в гр. София, Меден рудник - зона Г без посредник (3225)