+25% над пазара

спрямо ≈ 1 446 € /кв.м

104 821 €

1 807 € /кв.м.

Двустаен апартамент в Бургас, Хоризонт

Апартамент За продажба Под наем · Бургас Хоризонт · Обновена: 17 Апр 2026
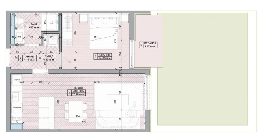
2 стаи
58 м²
0 /9 ет.
Тухла
2028 г.
Обяви за този имот (1)
104 821 €
1
1 Яну 0001  ·  17 Апр 2026
+25% над пазара (1 807 €/кв.м спрямо 1 446 €/кв.м)
Детайли
Площ
58 м²
Стаи
2
Етаж
0 от 9
Строителство
brick
Год. на строителство
2028 г.
Особености
elevator
video-surveillance
access-control
gated-community
Описание от продавача

ДИРЕКТНО ОТ ИНВЕСТИТОР! БЕЗ КОМИСИОННА!

Разположен в най- новия квартал на гр. Бургас - Хоризонт, Atlantis Aria 3 предлага близост до всичко необходимо за пълноценен начин на живот. Състои се от три eлегантни сгради и предлага богат избор от жилища, включително 43 двустайни, 88 тристайни и 25 многостайни апартаменти, гарантирайки, че всеки ще открие най- добрия вариант за него.

Предлагаме вариант за двустаен апартамент със собствен двор от 34,37 кв.м. Жилището е с обща площ от 58,13 кв.м. Състои се от комфортна дневна с кухня, спалня, баня и веранда с излаз към двора. Продава се при степен на завършеност - до тапа.

Atlantis Aria 3 е комплекс от затворен тип. Насладете се на спокойствието да знаете, че домът ви е винаги защитен чрез най- съвременните мерки за сигурност.

Предимства на проекта:

✔️ Сграда енергиен клас А
✔️ Дишаща вентилируема фасада- намалява топлинните загуби през зимата и предотвратява прегряването през лятото
✔️ Тихи високоскоростни асансьори - за 9 човека
✔️ Богато озеленени общи пространства
✔️ PVC дограма REHAU със стъклопакет 4 сезона
✔️ Контрол на достъпа и видеонаблюдение 24/7

📅 В процес на строителството.
Срок на строителство: 36 месеца

🔑 Инвеститор с опит и визия:

Атлантис България Холдинг е водещ строител и предприемач с над 25 години опит:

Повече от 25 реализирани проекта с издаден АКТ 16 и над 160 000 м² РЗП.
Развива текущи проекти с площ над 100 000 м² РЗП.
Над 2000 семейства са се доверили на компанията за своя дом.
Приоритетите на компанията са комфортът, сигурността и високата инвестиционна привлекателност на проектите.
Награди: Сграда на Годината (2020) и Инвеститор на Годината (2019)
Директна продажба от инвеститора - без комисионни

Приблизителна локация
Връзка с продавача
имоти за продажба без посредник (11340) имоти под наем без посредник (11340) имоти за продажба (11340) имоти под наем (11340) апартаменти под наем без посредник (6703) апартаменти за продажба (6703) апартаменти за продажба без посредник (6703) апартаменти под наем (6703) имоти за продажба в гр. София, Мусагеница без посредник (3268) имоти за продажба в гр. София, ПЗ Илиянци без посредник (3268) имоти за продажба в гр. София, Свобода без посредник (3268) имоти за продажба в гр. София, Горна баня без посредник (3268) имоти за продажба в гр. София, Изгрев без посредник (3268) имоти за продажба в гр. София, Славовци без посредник (3268) имоти за продажба в гр. София, Света Троица без посредник (3268) имоти за продажба в гр. София, Левски Г без посредник (3268) имоти за продажба в гр. София, Горубляне без посредник (3268) имоти за продажба в гр. София, Овча купел без посредник (3268) имоти за продажба в гр. София, м-т Орехите без посредник (3268) имоти за продажба в гр. София, Люлин 7 без посредник (3268) имоти за продажба в гр. София, Илиянци без посредник (3268) имоти за продажба в гр. София, Младост 1А без посредник (3268) имоти за продажба в гр. София, в.з. Беловодски път без посредник (3268) имоти за продажба в гр. София, Полигона без посредник (3268) имоти за продажба в гр. София, Разсадника без посредник (3268) имоти за продажба в гр. София, Подуяне без посредник (3268) имоти за продажба в гр. София, Красна поляна 3 без посредник (3268) имоти за продажба в гр. София, Младост 2 без посредник (3268) имоти за продажба в гр. София, Надежда 4 без посредник (3268) имоти за продажба в гр. София, в.з. Горна баня без посредник (3268) имоти за продажба в гр. София, Надежда 2 без посредник (3268) имоти за продажба в гр. София, в.з. Врана - Герман без посредник (3268) имоти за продажба в гр. София, НПЗ Хаджи Димитър без посредник (3268) имоти за продажба в гр. София, Павлово без посредник (3268) имоти за продажба в гр. София, в.з. Врана - Лозен без посредник (3268) имоти за продажба в гр. София, Суходол без посредник (3268) имоти за продажба в гр. София, Кубратово без посредник (3268) имоти за продажба в гр. София, Борово без посредник (3268) имоти за продажба в гр. София, Драгалевци без посредник (3268) имоти за продажба в гр. София, Белите брези без посредник (3268) имоти за продажба в гр. София, в.з. Драгалевци лифта без посредник (3268) имоти за продажба в гр. София, Илинден без посредник (3268) имоти за продажба в гр. София, Хиподрума без посредник (3268) имоти за продажба в гр. София, Лагера без посредник (3268) имоти за продажба в гр. София, Модерно предградие без посредник (3268) имоти за продажба в гр. София, Гоце Делчев без посредник (3268) имоти за продажба в гр. София, Красна поляна 1 без посредник (3268) имоти за продажба в гр. София, Център без посредник (3268) имоти за продажба в гр. София, Малинова долина без посредник (3268) имоти за продажба в гр. София, Меден рудник - зона Г без посредник (3268)