-30% под пазара

спрямо ≈ 2 426 € /кв.м

147 000 €

1 709 € /кв.м.

Двустаен апартамент в Бургас, Зорница

Продажба Бургас Зорница Обновена: 1 Апр 2026
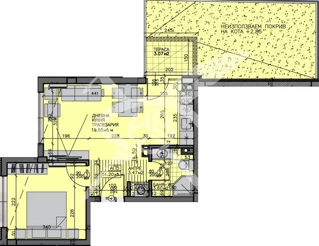
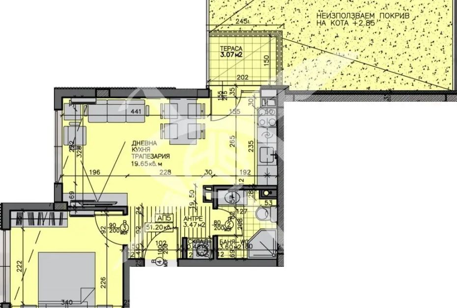
86 м²
Тухла
2 /5 ет.
2026 г.

Доходност от наем: 4.5% /год. Средна инвестиционна оценка

Обяви за този имот (1)

147 000 €
1
1 Яну 0001  ·  1 Апр 2026
-30% под пазара (1 709 €/кв.м спрямо 2 426 €/кв.м)
Потенциална годишна доходност: 4.5% (база: ~553 €/мес)
Инвестиционен клас: Средна

Детайли

Площ
86 м²
Стаи
2
Етаж
2 от 5
Строителство
brick
Год. на строителство
2026 г.

Описание от продавача

Компания Х представя на Вашето внимание двустаен апартамент в квартал Зорница

МЕСТОПОЛОЖЕНИЕ: Квартал Зорница е един от модерните и предпочитани за живеене райони в град Бургас. Разположен е в близост до Морската градина и езерото Вая, което осигурява красиви гледки и удобен достъп до зелени площи и места за разходка. Зорница е добре уреден квартал с множество магазини, спортни съоръжения и спирки на градския транспорт, а спокойната му среда го прави подходящ както за семейства, така и за млади хора.

РАПРЕДЕЛЕНИЕ: Апартаментът разполага с площ от 86 кв.м., функционално разпределени в спалня, хол с кухненски бокс, антре и санитарен възел, мокро помещение и тераса.

СЪСТОЯНИЕ: Жилището се предлага в строеж, което предлага на новите собственици да създадат своя нов дом придавайки му индивидуалност и стил, чрез собствен почерк.

Заповядайте да Ви го покажем. Използвайки нашите услуги Вие ще превърнете закупуването на новия си дом в едно приятно изживяване, ще получите персонален консултант, съдействие при кандидатстване за кредит от всички банки в България, интериорни дизайнери и екип, който да се погрижи за нужните документи по Вашата сделка. На Ваше разположение сме всеки ден, от понеделник до неделя от 09:00 до 20:00ч. Възползвайте се от безплатна консултация в наш офис, където ще ви спестим време и ще ви запознаем с всички актуални имоти в България, отговарящи на Вашето търсене. Нужен Ви е кода към имота: Сграда 1324 - 37683

Приблизителна локация
Връзка с продавача
имоти за продажба без посредник (11230) имоти под наем без посредник (11230) имоти за продажба (11230) имоти под наем (11230) апартаменти под наем без посредник (6669) апартаменти за продажба (6669) апартаменти за продажба без посредник (6669) апартаменти под наем (6669) имоти за продажба в гр. София, Мусагеница без посредник (3217) имоти за продажба в гр. София, ПЗ Илиянци без посредник (3217) имоти за продажба в гр. София, Свобода без посредник (3217) имоти за продажба в гр. София, Горна баня без посредник (3217) имоти за продажба в гр. София, Изгрев без посредник (3217) имоти за продажба в гр. София, Славовци без посредник (3217) имоти за продажба в гр. София, Света Троица без посредник (3217) имоти за продажба в гр. София, Левски Г без посредник (3217) имоти за продажба в гр. София, Горубляне без посредник (3217) имоти за продажба в гр. София, Овча купел без посредник (3217) имоти за продажба в гр. София, м-т Орехите без посредник (3217) имоти за продажба в гр. София, Люлин 7 без посредник (3217) имоти за продажба в гр. София, Илиянци без посредник (3217) имоти за продажба в гр. София, Младост 1А без посредник (3217) имоти за продажба в гр. София, в.з. Беловодски път без посредник (3217) имоти за продажба в гр. София, Полигона без посредник (3217) имоти за продажба в гр. София, Разсадника без посредник (3217) имоти за продажба в гр. София, Подуяне без посредник (3217) имоти за продажба в гр. София, Красна поляна 3 без посредник (3217) имоти за продажба в гр. София, Младост 2 без посредник (3217) имоти за продажба в гр. София, Надежда 4 без посредник (3217) имоти за продажба в гр. София, в.з. Горна баня без посредник (3217) имоти за продажба в гр. София, Надежда 2 без посредник (3217) имоти за продажба в гр. София, в.з. Врана - Герман без посредник (3217) имоти за продажба в гр. София, НПЗ Хаджи Димитър без посредник (3217) имоти за продажба в гр. София, Павлово без посредник (3217) имоти за продажба в гр. София, в.з. Врана - Лозен без посредник (3217) имоти за продажба в гр. София, Суходол без посредник (3217) имоти за продажба в гр. София, Кубратово без посредник (3217) имоти за продажба в гр. София, Борово без посредник (3217) имоти за продажба в гр. София, Драгалевци без посредник (3217) имоти за продажба в гр. София, Белите брези без посредник (3217) имоти за продажба в гр. София, в.з. Драгалевци лифта без посредник (3217) имоти за продажба в гр. София, Илинден без посредник (3217) имоти за продажба в гр. София, Хиподрума без посредник (3217) имоти за продажба в гр. София, Лагера без посредник (3217) имоти за продажба в гр. София, Модерно предградие без посредник (3217) имоти за продажба в гр. София, Гоце Делчев без посредник (3217) имоти за продажба в гр. София, Красна поляна 1 без посредник (3217) имоти за продажба в гр. София, Център без посредник (3217) имоти за продажба в гр. София, Малинова долина без посредник (3217) имоти за продажба в гр. София, Меден рудник - зона Г без посредник (3217)