4% на пазара

спрямо ≈ 2 427 € /кв.м

141 592 €

2 321 € /кв.м.

Двустаен апартамент в Бургас, Зорница

Продажба Бургас Зорница Обновена: 23 Март 2026
61 м²
Тухла
3 /5 ет.
2027 г.

Доходност от наем: 4.7% /год. Средна инвестиционна оценка

4% на пазара (2 321 €/кв.м спрямо 2 427 €/кв.м)
Потенциална годишна доходност: 4.7% (база: ~554 €/мес)
Инвестиционен клас: Средна

Детайли

Площ
61 м²
Стаи
2
Етаж
3 от 5
Строителство
brick
Год. на строителство
2027 г.

Особености

elevator
parking
renovated

Описание от продавача

Референтен номер: LXH-134937

Предлагаме светъл и уютен двустаен апартамент, разположен в съвременна нова сграда, отличаваща се с елегантна визия, високо качество на изпълнение и внимание към детайла. Имотът се намира в един от най-зелените и предпочитани райони на Бургас ж.к. Зорница , който предлага перфектен баланс между спокойствие, модерна инфраструктура и близост до морския бряг. Локацията осигурява бърз достъп до центъра на града, училища, паркове и удобства за активен и комфортен начин на живот.

Етапи:
В процес на строителство от 08.2025 г.
Планирано завършване - след 24 месеца.

Локация и предимства:
Сградата се намира в район с ограничени възможности за ново строителство, което гарантира устойчива стойност във времето.
Местоположението предлага баланс между комуникативност и спокойствие в близост са центърът на града, Морската градина, основни пътни артерии, детска градина, училище, спортна зала, спирки на градския транспорт и разнообразие от магазини и заведения.
На пешеходно разстояние се намират клиника 4Life, поликлиника, детска клиника и здравни лаборатории, което прави района изключително подходящ за семейства и хора, търсещи комфорт и сигурност.

Характеристики на сградата:
Пет жилищни етажа с двустайни и тристайни имоти, завършени по БДС.
Сутерен с гаражи и паркоместа, осигуряващи удобство и безопасност за собствениците.
Модерна архитектура и енергийно ефективни решения, гарантиращи ниски разходи за поддръжка и отопление.
Висококачествени материали и прецизно строителство стандарт, който осигурява дълготрайна стойност и комфорт.

Характеристики на имота

Разположен на трети жилищен етаж;
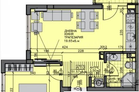
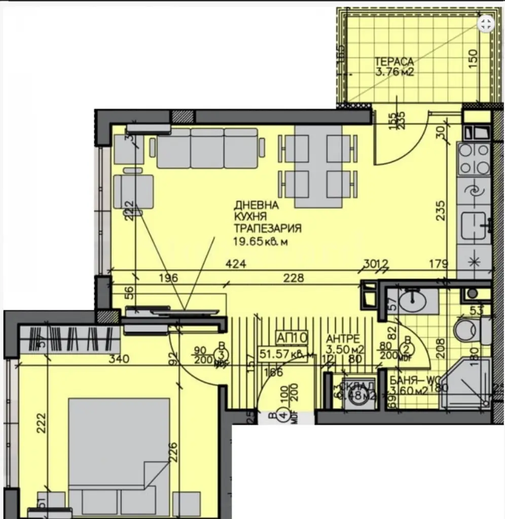
Обща площ: 61.56 кв.м;
Общи части: 10.42 кв.м;
Изложение: изток;
Разпределение: просторна всекидневна с кухня и трапезария, комфортна спалня, баня с тоалетна и тераса.

Предимства:
Съвременна архитектура и елегантна ...

За повече информация свържете се с нас и цитирайте референтния номер на имота. Моля, кажете, че сте видeли обявата в този сайт.
Референтен номер: LXH-134937
Тел: +359 889 007 010
Моб: +359 877 777 888 (WhatsApp, Viber, SMS)
Отговорен брокер:Стоунхард ПРЕМИЪР
Без комисиона от купувача

Точен адрес

Връзка с продавача