-1% на пазара

спрямо ≈ 1 564 € /кв.м

117 000 €

1 581 € /кв.м.

Двустаен апартамент с югозападно изложение в Мадика, Бургас

Апартамент За продажба Под наем · Бургас Мадика · Обновена: 6 Апр 2026
2 стаи
1 бани
74 м²
6 /9 ет.
Тухла
2025 г.
Обяви за този имот (2)
117 000 €
1
1 Яну 0001  ·  6 Апр 2026
119 000 €
1
1 Яну 0001  ·  31 Март 2026
-1% на пазара (1 581 €/кв.м спрямо 1 564 €/кв.м)
Коментар от imotesa
AI обобщение

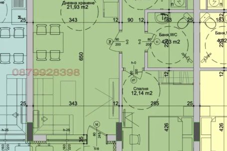
Предлаганият имот е двустаен апартамент в нов жилищен комплекс Грийн парк 2, разположен в местност Мадика, град Бургас. Сградата е с акт 16 и е построена през 2025 година.

Апартаментът е с площ от 73,5 кв.м и се намира на 6-ти от общо 9 етажа. Разпределението включва входно антре, склад, баня с тоалетна, кухня с дневна и отделна спалня, както и тераса с югозападно изложение, което осигурява добра естествена светлина.

Строителството е тухлено, което гарантира по-добра топлоизолация и шумоизолация. Сградата е нова и в добро състояние, което намалява необходимостта от ремонт или допълнителни инвестиции.

Локацията е комуникативна, с близост до магазин Lidl, автобусни спирки, училища и детски градини, което улеснява ежедневието на живущите. Възможно е закупуване на открито паркомясто срещу допълнително заплащане.

Имотът е подходящ за хора, търсещи комфорт и удобство в нова сграда с добра локация и функционално разпределение.

Разпределение
  • входно антре
  • склад
  • баня/WC
  • кухня с дневна
  • спалня
  • тераса
Предимства

югозападно изложение

нова тухлена сграда

добра локация

функционално разпределение

Недостатъци

Няма налични данни за недостатъци.

Изложение
N S E W
SW
Изложение на имота
Детайли
Площ
74 м²
Стаи
2
Бани
1
Етаж
6 от 9
Строителство
brick
Год. на строителство
2025 г.
Особености
elevator
parking
Описание от продавача

Предлагаме за продажба двустаен апартамент в нов жилищен комплекс Грийн парк 2 (сградата е с Акт-16) местност Мадика, гр. Бургас
Апартаментът е разположен на 6-ти етаж (не последен), с площ от 73,5 м2, югозападно изложение.
Разпределение: входно антре, склад, баня/WC, кухня с дневна, отделна спалня, тераса.
Сградата е с комуникативна локация, в близост до магазин Lidl, автобусни спирки, училища и детски градини.
При закупуване на имота, вие ще имате възможност да закупите удобно открито паркомясто с площ от 12,50 м2 на цена от 13 000 евро.

Приблизителна локация
Връзка с продавача
имоти за продажба без посредник (11340) имоти под наем без посредник (11340) имоти за продажба (11340) имоти под наем (11340) апартаменти под наем без посредник (6703) апартаменти за продажба (6703) апартаменти за продажба без посредник (6703) апартаменти под наем (6703) имоти за продажба в гр. София, Мусагеница без посредник (3268) имоти за продажба в гр. София, ПЗ Илиянци без посредник (3268) имоти за продажба в гр. София, Свобода без посредник (3268) имоти за продажба в гр. София, Горна баня без посредник (3268) имоти за продажба в гр. София, Изгрев без посредник (3268) имоти за продажба в гр. София, Славовци без посредник (3268) имоти за продажба в гр. София, Света Троица без посредник (3268) имоти за продажба в гр. София, Левски Г без посредник (3268) имоти за продажба в гр. София, Горубляне без посредник (3268) имоти за продажба в гр. София, Овча купел без посредник (3268) имоти за продажба в гр. София, м-т Орехите без посредник (3268) имоти за продажба в гр. София, Люлин 7 без посредник (3268) имоти за продажба в гр. София, Илиянци без посредник (3268) имоти за продажба в гр. София, Младост 1А без посредник (3268) имоти за продажба в гр. София, в.з. Беловодски път без посредник (3268) имоти за продажба в гр. София, Полигона без посредник (3268) имоти за продажба в гр. София, Разсадника без посредник (3268) имоти за продажба в гр. София, Подуяне без посредник (3268) имоти за продажба в гр. София, Красна поляна 3 без посредник (3268) имоти за продажба в гр. София, Младост 2 без посредник (3268) имоти за продажба в гр. София, Надежда 4 без посредник (3268) имоти за продажба в гр. София, в.з. Горна баня без посредник (3268) имоти за продажба в гр. София, Надежда 2 без посредник (3268) имоти за продажба в гр. София, в.з. Врана - Герман без посредник (3268) имоти за продажба в гр. София, НПЗ Хаджи Димитър без посредник (3268) имоти за продажба в гр. София, Павлово без посредник (3268) имоти за продажба в гр. София, в.з. Врана - Лозен без посредник (3268) имоти за продажба в гр. София, Суходол без посредник (3268) имоти за продажба в гр. София, Кубратово без посредник (3268) имоти за продажба в гр. София, Борово без посредник (3268) имоти за продажба в гр. София, Драгалевци без посредник (3268) имоти за продажба в гр. София, Белите брези без посредник (3268) имоти за продажба в гр. София, в.з. Драгалевци лифта без посредник (3268) имоти за продажба в гр. София, Илинден без посредник (3268) имоти за продажба в гр. София, Хиподрума без посредник (3268) имоти за продажба в гр. София, Лагера без посредник (3268) имоти за продажба в гр. София, Модерно предградие без посредник (3268) имоти за продажба в гр. София, Гоце Делчев без посредник (3268) имоти за продажба в гр. София, Красна поляна 1 без посредник (3268) имоти за продажба в гр. София, Център без посредник (3268) имоти за продажба в гр. София, Малинова долина без посредник (3268) имоти за продажба в гр. София, Меден рудник - зона Г без посредник (3268)