+27% над пазара

спрямо ≈ 1 894 € /кв.м

126 900 €

1 812 € /кв.м.

Двустаен апартамент в Бургас, Изгрев

Продажба Бургас Изгрев Обновена: 15 Апр 2026
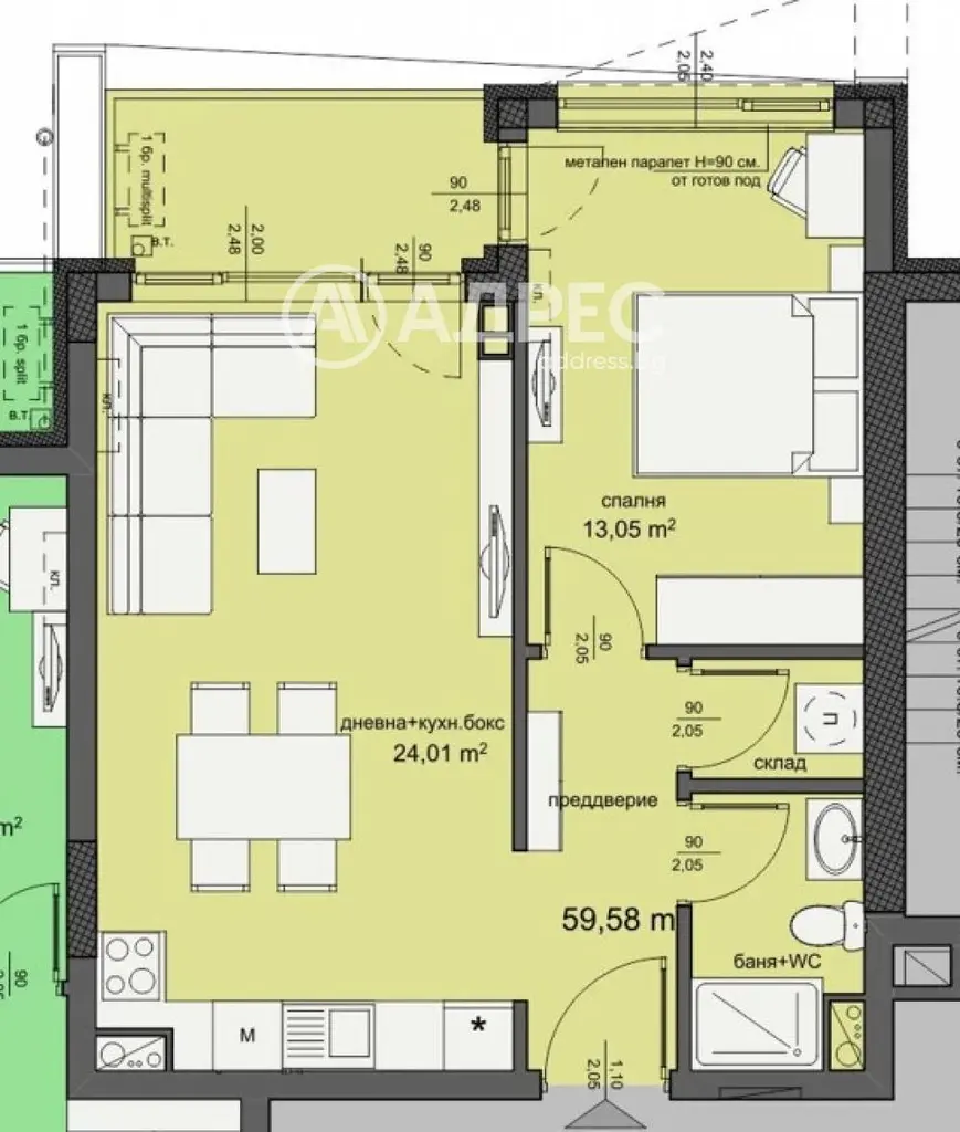
70 м²
Тухла
2 стаи
1 /14 ет.
2028 г.

Доходност от наем: 3.7% /год. Ниска инвестиционна оценка

Обяви за този имот (4)

170 904 €
1
1 Яну 0001  ·  15 Апр 2026
126 900 €
0
1 Яну 0001  ·  27 Фев 2026
133 950 €
0
1 Яну 0001  ·  3 Фев 2026
170 904 €
0
1 Яну 0001  ·  6 Яну 2026
+27% над пазара (2 407 €/кв.м спрямо 1 894 €/кв.м)
Потенциална годишна доходност: 3.7% (база: ~530 €/мес)
Инвестиционен клас: Ниска

Детайли

Площ
70 м²
Стаи
2
Етаж
1 от 14
Строителство
brick
Год. на строителство
2028 г.

Особености

elevator

Описание от продавача

Piccadilly Residence жилище от ново поколение в сърцето на Бургас! Комбинация от стилна архитектура, удобство и комфорт, създадена за съвременния градски човек.

Проект разположен на площ 9645 кв.м. съставляващ сграда със смесено предназначение и се състои от един сутерен, един полусутерен, един изцяло надземен етаж и до 14 етажа над тях. Обособени са 6 /шест/ входа, разделени на четири секции - входове А,Б,В,Г,Д и Е .

На партерния етаж ще има супермаркет-Лидъл, аптека и медицински център.

Жилищата за продажба са 370 единици- двустайни, тристайни и многостайни апартаменти.

Осигурено паркиране в границите на имота - 447 броя паркоместа 159 броя в сутерена , 92 броя в полусутерена, 138 броя в надземния етаж и 58 открити външни паркоместа около сградата.

Простор и естествена светлина благодарение на тавани с височина от 2.90 м
Троен стъклопакет с двуосово отваряеми прозорци за максимален комфорт и шумоизолация
PVC дограма Kommerling, Германия с иновативно стъкло 4 сезона за идеален микроклимат през цялата година
Входни врати от най-висок клас сигурност, които осигуряват спокойствие и защита
Подготвена инсталация за климатици във всеки апартамент без нужда от допълнителни ремонти
Smart домофонна система с управление през мобилно приложение
СОТ окабеляване на входните врати за допълнителна сигурност
Звукоизолация на стени и подове, гарантираща тишина и уединение
Възможност за оптичен интернет и телевизия с най-висока скорост
LED осветление с мултизонално управление в общите части за по-нисък разход и модерна визия
Готовност за ползване монтирани ключове, контакти и висококачествени електроинсталации
Енергийна ефективност клас А, осигуряваща по-ниски разходи за поддръжка и по-здравословна среда
Зелен парк с гледка към града и морето.
Асансьори отис от най-висок клас и скорост
Супермаркет LIDL и магазин за ежедневни покупки
Аптека и медицински център за детоксикация
Апартаменти със собствени зелени дворове съчетание на уюта на къща със сигурността на жилищен комплекс
Инфраструктура за умен дом решения възможност за интегриране на смарт технологии според нуждите на собствениците
Специално проектирани зони за домашни любимци, така че и те да са част от удобния живот

Обади се сега и цитирай този код 671796

Приблизителна локация
Връзка с продавача
имоти за продажба без посредник (11265) имоти под наем без посредник (11265) имоти за продажба (11265) имоти под наем (11265) апартаменти под наем без посредник (6684) апартаменти за продажба (6684) апартаменти за продажба без посредник (6684) апартаменти под наем (6684) имоти за продажба в гр. София, Мусагеница без посредник (3225) имоти за продажба в гр. София, ПЗ Илиянци без посредник (3225) имоти за продажба в гр. София, Свобода без посредник (3225) имоти за продажба в гр. София, Горна баня без посредник (3225) имоти за продажба в гр. София, Изгрев без посредник (3225) имоти за продажба в гр. София, Славовци без посредник (3225) имоти за продажба в гр. София, Света Троица без посредник (3225) имоти за продажба в гр. София, Левски Г без посредник (3225) имоти за продажба в гр. София, Горубляне без посредник (3225) имоти за продажба в гр. София, Овча купел без посредник (3225) имоти за продажба в гр. София, м-т Орехите без посредник (3225) имоти за продажба в гр. София, Люлин 7 без посредник (3225) имоти за продажба в гр. София, Илиянци без посредник (3225) имоти за продажба в гр. София, Младост 1А без посредник (3225) имоти за продажба в гр. София, в.з. Беловодски път без посредник (3225) имоти за продажба в гр. София, Полигона без посредник (3225) имоти за продажба в гр. София, Разсадника без посредник (3225) имоти за продажба в гр. София, Подуяне без посредник (3225) имоти за продажба в гр. София, Красна поляна 3 без посредник (3225) имоти за продажба в гр. София, Младост 2 без посредник (3225) имоти за продажба в гр. София, Надежда 4 без посредник (3225) имоти за продажба в гр. София, в.з. Горна баня без посредник (3225) имоти за продажба в гр. София, Надежда 2 без посредник (3225) имоти за продажба в гр. София, в.з. Врана - Герман без посредник (3225) имоти за продажба в гр. София, НПЗ Хаджи Димитър без посредник (3225) имоти за продажба в гр. София, Павлово без посредник (3225) имоти за продажба в гр. София, в.з. Врана - Лозен без посредник (3225) имоти за продажба в гр. София, Суходол без посредник (3225) имоти за продажба в гр. София, Кубратово без посредник (3225) имоти за продажба в гр. София, Борово без посредник (3225) имоти за продажба в гр. София, Драгалевци без посредник (3225) имоти за продажба в гр. София, Белите брези без посредник (3225) имоти за продажба в гр. София, в.з. Драгалевци лифта без посредник (3225) имоти за продажба в гр. София, Илинден без посредник (3225) имоти за продажба в гр. София, Хиподрума без посредник (3225) имоти за продажба в гр. София, Лагера без посредник (3225) имоти за продажба в гр. София, Модерно предградие без посредник (3225) имоти за продажба в гр. София, Гоце Делчев без посредник (3225) имоти за продажба в гр. София, Красна поляна 1 без посредник (3225) имоти за продажба в гр. София, Център без посредник (3225) имоти за продажба в гр. София, Малинова долина без посредник (3225) имоти за продажба в гр. София, Меден рудник - зона Г без посредник (3225)