+2% над пазара

Двустаен апартамент в Бургас, Хоризонт

Бургас Хоризонт
Публикувано: 2 Дек 2025 · Обновено: 3 Март 2026
Продажба
Продажба 90 640 € 1 485 €/кв.м
Площ
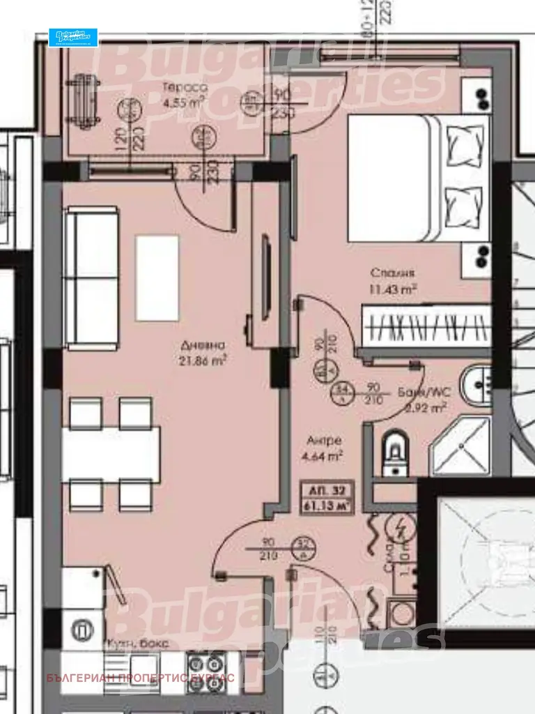
61 м²
Етаж
6 / 10
Строителство
Тухла
Година
2027
Отопление
Газ

Удобства

elevator
security

Детайли

Площ61 м²
Стаи2
Етаж6 от 10
СтроителствоТухла
ОтоплениеГаз
Год. на строителство2027 г.

Описание от продавача

За повече информация обадете ни се на тел: 0882 817 494 или 056 828 449 и цитирайте референтния номер на имота: BS 88942.

Отговорен брокер: Георги Иванов

Представяме Ви изключителен двустаен апартамент в ново строителство, разположен в квартал Азимут новото модерно лице на Бургас и една от най-перспективните градски зони. Локацията е отлично позиционирана само на 5 км от морето, с бърз и удобен достъп до основните пътни артерии и изцяло нова, съвременна инфраструктура.
Сградата е проектирана с визия за бъдещето и съчетава жилищни апартаменти от висок клас с разнообразие от здравни, търговски и обществени услуги, които превръщат комплекса в самостоятелна, добре организирана градска среда.

Основни характеристики на имота
Площ: 61.18 кв.м
Етаж: 6 от 9
Спални: 1
Състояние: БДС (шпакловка и замазка)
Обзавеждане: необзаведен
Тип строителство: ново строителство
Година на завършване: 2027 г.
Асансьор: да
Двор: не

Апартаментът се състои от входно антре, баня с тоалетна, спалня, просторен хол с кухненски бокс и тераса с излаз от двете стаи, осигуряваща отлична функционалност и естествена светлина.

Удобства в комплекса
Уелнес център и фитнес
Ресторанти и сладкарници
Търговски площи и хипермаркет
Банки и медицински център
Център за красота
Детски кътове
Спортни площадки
Тенис кортове
Футболно игрище
Библиотека
Зони за разходка на домашни любимци
Скай бар
Водно огледало
Всичко необходимо за модерен, активен и комфортен начин на живот е събрано на едно място.

Качество на строителството
Фасади с топлоизолация, HPL, Etalbond и естествен камък
Висок клас немска дограма с троен стъклопакет
Луксозни общи части с гранитогрес и инокс парапети
Газифицирани апартаменти
Изградена инсталация за климатици
Енергиен клас А за всички жилища
Интериорните пространства са проектирани с внимание към простора, естествената светлина и хармоничните пропорции, така че да отговарят на съвременните изисквания и да запазят стойността си във времето.

Квартал Азимут се утвърждава като новия модерен градски оазис на Бургас зелен, подреден и ориентиран към високо качество на живот. Той съчетава близостта до природата с всички удобства на динамичния град, което го прави отличен избор както за собствен дом, така и за дългосрочна инвестиция.

Допълнителна възможност
Покупка на гараж срещу допълнително заплащане

Оглед на имота
Можем да организираме оглед на имота спрямо нашия график и възможностите ...

Местоположение